Boligudvalget 2023-24
BOU Alm.del Bilag 76
Offentligt
2846509_0001.png
Inspektionsrapport
Plus Bolig, afd. 1056
K. Christensensvej
Udført for ALABU Bolig
April 2023
Udført af:
DAI
Holmstrupgårdvej 20A
8220 Brabrand
BOU, Alm.del - 2023-24 - Bilag 76: Henvendelse af 2/4-24 fra Henning Schøn om tilsyn og om boligselskab overholder loven
2846509_0002.png
Inspektionsrapport
Plus Bolig, afd. 1056, K. Christensensvej
For ALABU
Indhold:
1.1
1.2
1.3
1.4
1.5
Grundlag og formål
Gennemgang af bebyggelse
Ejendommens hoveddata
Om afdelingen og tidligere tiltag
Bygningsinspektionen
1.5.0
1.5.1
1.5.2
1.5.3
1.5.4
1.5.5
1.5.6
1.5.7
1.6
1.7
1.8
Fundamenter og sokkel
Terrændæk
Ydervægge og murværk generelt
Tagkonstruktion og tagrum
Vinduer og døre
Indvendige overflader og vægge
Bygningsstabilitet
Ventilation
Side 1
Side
2
2
3
3
6
6
7
7
10
13
14
16
19
20
21
22
Plus Boligs administration af afdelingen
Konklusion og løsningsforslag
Økonomisk overslag ved udbedring
Bilag:
Nr.
Nr.
Nr.
Nr.
Nr.
1
2
3
4
5
Udvalgte tegninger ifm. afdelingens opførelse
Udvalgte tegninger ifm. tagudskiftning
Foto
Revne registrering i besigtigede boliger
BygErfa_980922_Revner i vægge af etagehøje letbetonelementer
DAI
Holmstrupgårdvej 20A, 8220 Brabrand
Alabu Bolig
Brohusgade 2B, 9000 Aalborg
Dato 17.04.2023
Sag nr. 13803
BOU, Alm.del - 2023-24 - Bilag 76: Henvendelse af 2/4-24 fra Henning Schøn om tilsyn og om boligselskab overholder loven
2846509_0003.png
Inspektionsrapport
Plus Bolig, afd. 1056, K. Christensensvej
For ALABU
1.1
Grundlag og formål
Formålet med inspektionen, er at få et overblik over den økonomiske konsekvens af Plus Bo-
ligs passivitet ift. Byggeskadefondens 1 års samt 5 års eftersyn ifm. en tidligere tagudskift-
ning, samt de kendte problemer med revner i indvendige vægge.
Inspektionsrapporten skal samtidigt belyse det overordnede indtryk af afdelingens umiddel-
bare tilstand og ikke mindst komme med en vurdering af mulighederne for udbedring af de
bygnings- samt konstruktionsmæssige problemer.
Der blev d. 28. februar 2023 foretaget en visuel besigtigelse af bolig nr. 40 samt en gennem-
gang afdelingen og dens historik. Her deltog Direktør Klaus Ringgaard, Inspektør René Peter-
sen og afdelingens formand Henning Schøn, samt Jannik Madsen og Thomas Munk Larsen fra
DAI.
Denne inspektion er baseret på en stikprøvevis, gennemgang af afdelingen d. 13. marts
2023 og d. 28. marts 2023, med deltagelse af hhv. inspektør René Petersen fra Alabu og
afdelingens formand Henning Schøn samt Thomas Munk Larsen fra DAI.
Der blev udført visuel besigtigelse af bolig og tagrum i nr. 40, 42, 44, 46 og 56.
Der blev udført destruktive undersøgelser af tagkonstruktionens forankringer til sokkel.
Side 2
1.2
Gennemgang af bebyggelse
Nedenstående røde markeringer angiver placering af de undersøgte boliger samt destruktive
undersøgelser i facadens hulmure.
DAI
Holmstrupgårdvej 20A, 8220 Brabrand
Alabu Bolig
Brohusgade 2B, 9000 Aalborg
Dato 17.04.2023
Sag nr. 13803
BOU, Alm.del - 2023-24 - Bilag 76: Henvendelse af 2/4-24 fra Henning Schøn om tilsyn og om boligselskab overholder loven
2846509_0004.png
Inspektionsrapport
Plus Bolig, afd. 1056, K. Christensensvej
For ALABU
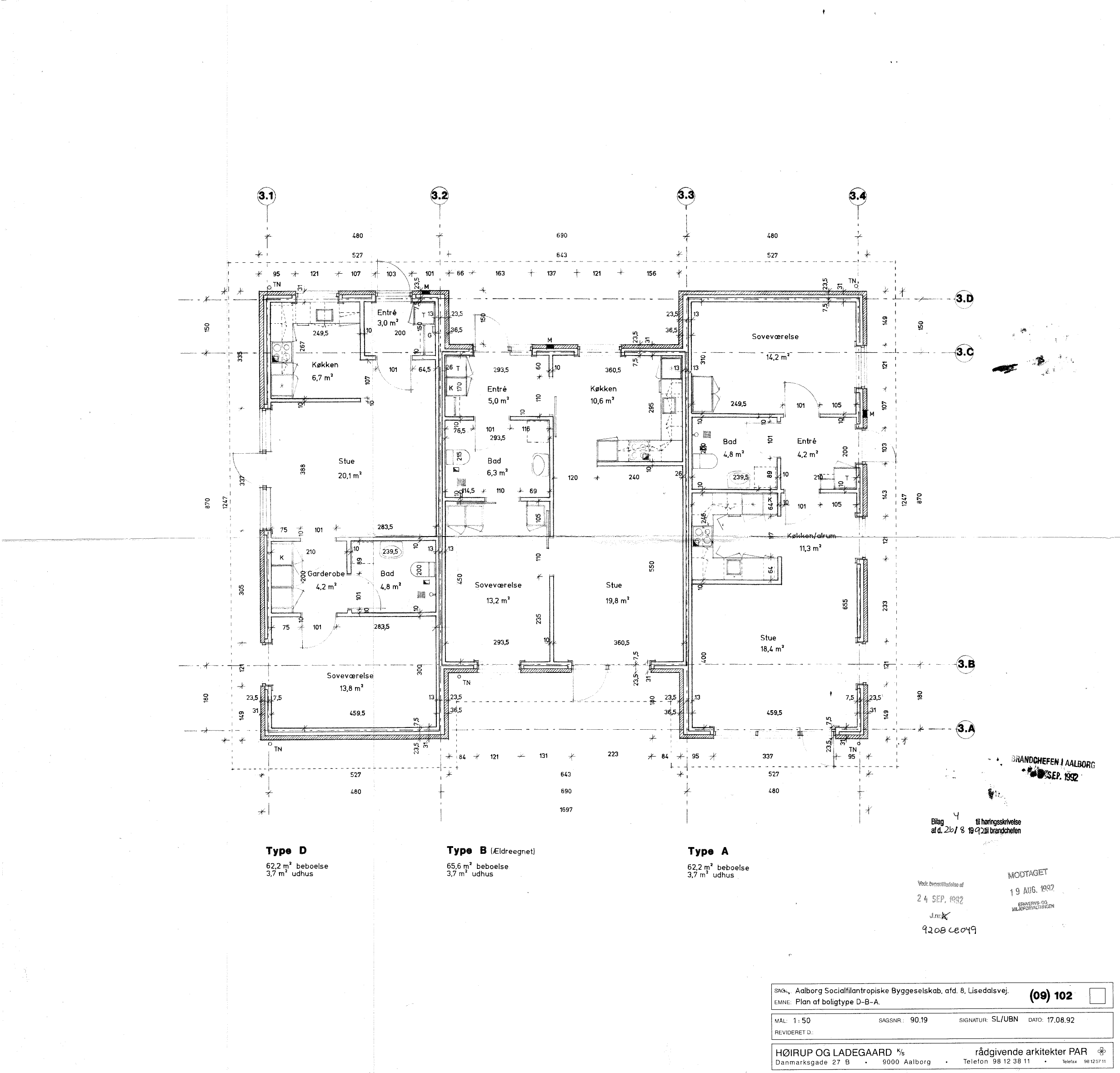
1.3
Ejendommens hoveddata
Postadresse:
Afdelingen ligger på:
Grundareal:
Afdelingsnummer og navn
Kommunalt ejendoms nr.:
Skæringsdato
Boligareal:
Ejer:
Vurderingsoplysninger:
Boligfordeling:
K. Christensens Vej 20-60, 9200 Aalborg SV
Matr. nr. 11q, Sofiendal By, Skalborg
3916 m
2
156 56
185259
01-11-1993
1280 m
2
(Iht. LBF)
Plus Bolig
Ejendomsværdi:
Grundværdi:
kr. 14.700.000 (2022)
kr. 3.726.300 (2022)
Side 3
2 stk. bygninger på 197 m
2
4 stk. bygninger på 189 m
2
Hver bygning indeholder 3 boliger
1 stk. bygning på 189 m
2
Bygning indeholder 2 boliger
1 Fælleshus på 74 m
2
Derudover er der opført skure ved boligerne.
1.4
Om afdelingen og tidligere tiltag
Afdelingen er opført 1993.
Bebyggelsen består af sammenbyggede rækkehuse i et plan.
Grunden er skrånende med fald mod syd og øst.
Afdelingen er, iht. tegninger, tidstypisk for denne type byggeri.
Bygningerne er opført med hulmur, som muret facade og bagmure udført af pore-letbetone-
lementer.
Iht. tegninger, skulle bagmure og skillevægge være udført af leca-letbeton helvægselemen-
ter, men ved den visuelle besigtigelse, kan det ses at skillevægge er udført af pore-letbeton
vægelementer.
Fundamenter er udført af beton og letklinkerblokke.
Gulve er udført med strøer, på terrændæk af letklinker gulvblokke.
Tagene er oprindeligt udført med fibercement bølgeplader, men er i 2015 udskiftet til tagpap
med lister på brædder. Samtidigt blev de uudnyttede tagrum efterisoleret med stenuldsgra-
nulat, så der i dag er ca. 450 mm isolering.
Der er gangbro af brædder i tagrum.
Vinduer og døre er udskiftet i 2019 til træ-alu. med 3 lag glas.
Baderum er indeliggende og således uden vindue.
Der er niveaufri adgang ved hoveddøre.
Der er sokkelkant af varierende højde ved terrassedøre.
Opvarmning er fjernvarme og radiatorer.
I køkken, er der monteret emhætte med afkast over tag.
I baderum, er der monteret mekanisk aftræk med afkast over tag.
Kloak er separeret i 2022.
Til hvert hus hører en lille privat have.
Vedligeholdelsen påhviler lejerne og haverne fremstår derfor forskellige.
Det er tilhørende centralt beliggende privat P-plads.
DAI
Holmstrupgårdvej 20A, 8220 Brabrand
Alabu Bolig
Brohusgade 2B, 9000 Aalborg
Dato 17.04.2023
Sag nr. 13803
BOU, Alm.del - 2023-24 - Bilag 76: Henvendelse af 2/4-24 fra Henning Schøn om tilsyn og om boligselskab overholder loven
2846509_0005.png
Inspektionsrapport
Plus Bolig, afd. 1056, K. Christensensvej
For ALABU
Side 4
DAI
Holmstrupgårdvej 20A, 8220 Brabrand
Alabu Bolig
Brohusgade 2B, 9000 Aalborg
Dato 17.04.2023
Sag nr. 13803
BOU, Alm.del - 2023-24 - Bilag 76: Henvendelse af 2/4-24 fra Henning Schøn om tilsyn og om boligselskab overholder loven
2846509_0006.png
Inspektionsrapport
Plus Bolig, afd. 1056, K. Christensensvej
For ALABU
Tidslinje:
1993:
2015:
2019:
2022:
Løbende:
Løbende:
Side 5
Opførelse
Fibercement bølgeplader udskiftet til tagpap og efterisolering af tagrum
Vinduer og døre udskiftet
Kloakseparering
Kosmetisk udbedring af revner i indvendige vægge
Nye køkkener
– Oplyst at der er 3 ”gamle” tilbage
DAI
Holmstrupgårdvej 20A, 8220 Brabrand
Alabu Bolig
Brohusgade 2B, 9000 Aalborg
Dato 17.04.2023
Sag nr. 13803
BOU, Alm.del - 2023-24 - Bilag 76: Henvendelse af 2/4-24 fra Henning Schøn om tilsyn og om boligselskab overholder loven
2846509_0007.png
Inspektionsrapport
Plus Bolig, afd. 1056, K. Christensensvej
For ALABU
1.5
Bygningsinspektionen
Med udgangspunkt i de undersøgelser som er udført ifm. denne inspektion, vil det vurderes
om Plus Boligs administration har udført deres pligter og opgaver som en ansvarlig boligor-
ganisation.
Der er undersøgt udvalgte bygningsdele fra bebyggelsen opførelse, samt senere udskiftnin-
ger. Der er udført enkelte destruktive undersøgelser.
1.5.0
Fundamenter og sokkel
Fundamenter er støbt af beton på stedet og afsluttet med 3 skifter letklinkerblokke.
Der er ikke registreret sætningsskader ved de besigtigede bygninger.
Iht. tegninger er der udført tidstypisk isolering af og ved sokler, hvorfor der generelt ikke er
store kuldebroer, der er dog meget begrænset isolering ved døre.
Side 6
Sokler er pudsede og fremstår generelt slidte med skader, revner og afskallinger.
Der er generelt mange mindre revner i pudsen, men ikke noget som umiddelbart vurderes at
kunne henføres til problemer med fundamenter.
Foto viser hvordan de typiske skader på puds fremstår i bebyggelsen.
Byggeriet er ikke udført med de i dag gældende anbefalinger om mindst fri sokkelhøjde på
150 mm og den mindste kote forskel mellem overkant terræn og overkant letklinker-gulv-
blokke på 50 mm, disse forhold, samt at der heller ikke er sokkelrender i bebyggelsen, kan
give øget risiko for fugtskader ifm. f.eks. skybrud pga. opstuvende vand ved sokler.
Samtidigt er der ligeledes øget risiko for fugtindtrængning pga. de registrerede skader og
revner i sokkelpudsen.
Konklusion
Fundamenter og sokkel
Der er begrænset isolering ved døre
Der er generelt skader på sokkelpuds
Manglende fri sokkelhøjde og skadet sokkelpuds kan give øget risiko for fugtskader
DAI
Holmstrupgårdvej 20A, 8220 Brabrand
Alabu Bolig
Brohusgade 2B, 9000 Aalborg
Dato 17.04.2023
Sag nr. 13803
BOU, Alm.del - 2023-24 - Bilag 76: Henvendelse af 2/4-24 fra Henning Schøn om tilsyn og om boligselskab overholder loven
2846509_0008.png
Inspektionsrapport
Plus Bolig, afd. 1056, K. Christensensvej
For ALABU
1.5.1
Terrændæk
Iht. tegninger er terrændæk udført af 190 mm letklinker-gulvblokke udlagt på sand.
Tegninger viser ingen isolering i terrændæk og letklinker-gulvblokke har meget begrænset
isoleringsværdi. Afdelingens formand oplyser dog at der er isolering, hvilket han kunne se
ifm. udbedring af et utæt varmerør. Her skal man dog være opmærksom på at der normalt
maks. kun må være 50-70 mm isolering mellem gulv og terrændækket for at undgå kondens
og evt. skimmel.
Letklinker-gulvblokke er ikke en radontæt løsning. Iht. tegninger er der udlagt fugtspærre
men denne kan ikke påregnes også at fungere som radonspærre.
Generelt er det ikke registreret eller oplyst, at der er problemer med terrændæk.
Side 7
Konklusion
Terrændæk
Isoleringstykkelsen mellem gulv og terrændæk bør kontrolleres
Iht. kort over radon i Danmark, er der lav risiko for radon i boliger
Generelt er der ikke registreret synlige problemer
1.5.2
Ydervægge og murværk generelt
Iht. tegninger er bygningerne opført som 310 mm hulmur, med 108 mm muret facade, 100
mm isolering og 100 mm bagmure udført af pore-letbeton elementer som er ca. 60 cm
brede.
(BEMÆRK
at iht. tegninger, skulle bagmure og skillevægge være udført af 100 mm leca-
letbeton helvægselementer)
Facader er opbygget i bånd med glatte røde og gule maskinsten.
Murværket fremstår med områder med nedslidte og nedbrudte fuger.
Der er ikke registreret gennemgående lodrette eller vandrette revner i det udvendige mur-
værk.
Sålbænke vurderes at være af polyesterbeton eller fiberbeton.
De er delvist indmuret i sidefalsen, men der er udført en løsning med vandretliggende
fuger ved enderne, som ikke anbefales i dag, pga. levetiden på fugen vil være kort og utæt-
heder ved murværk eller opkant vil medføre opfugtning af underliggende konstruktion.
Der er ses generelt fugeslip mellem sålbænk og murværk.
DAI
Holmstrupgårdvej 20A, 8220 Brabrand
Alabu Bolig
Brohusgade 2B, 9000 Aalborg
Dato 17.04.2023
Sag nr. 13803
BOU, Alm.del - 2023-24 - Bilag 76: Henvendelse af 2/4-24 fra Henning Schøn om tilsyn og om boligselskab overholder loven
2846509_0009.png
Inspektionsrapport
Plus Bolig, afd. 1056, K. Christensensvej
For ALABU
Side 8
Der ses ligeledes nedslidte og løse elastiske fuger samt nedbrudte mørtelfuger under sål-
bænke.
Det blev af afdelingens formand oplyst, at der er udskiftet ca. 50 stk. tegloverliggere i be-
byggelsen, hvor murværket havde skader pga. rusten armering. Der burde være rustfri ar-
mering i tegloverliggere fra 1993, det er derfor uklart om der kan være tale om produktions
fejl eller om man evt. har lagt ekstra løse armeringsjern i liggefugen.
Der er pt. ikke tegn på yderligere skader ifm. de tegloverliggere som ikke er skiftet.
På nogle facader ses der nedbrydning af overfladen (brandhuden), på især de gule mursten.
På trods af de dårligt producerede mursten, ses der i øvrigt ikke større afskallinger som
f.eks. kan skyldes frost.
Skader er for nuværende mest af udseendemæssig karakter, men det skal påregnes at der
skal udføres en snarlig overfladebehandling eller udskiftning af mursten, for at begrænse
skadens omfang.
DAI
Holmstrupgårdvej 20A, 8220 Brabrand
Alabu Bolig
Brohusgade 2B, 9000 Aalborg
Dato 17.04.2023
Sag nr. 13803
BOU, Alm.del - 2023-24 - Bilag 76: Henvendelse af 2/4-24 fra Henning Schøn om tilsyn og om boligselskab overholder loven
2846509_0010.png
Inspektionsrapport
Plus Bolig, afd. 1056, K. Christensensvej
For ALABU
Side 9
Ved tagudhæng ses der områder med revnet og løst murværk.
Afdelingens formand oplyser, at det generelt skyldes underbeklædningen har været monteret
for tæt på facader ifm. tagudskiftningen og derved trykket sten løse.
I dag er underbeklædningen afkortet for at afhjælpe problemet, samt sikre tilstrækkelig ud-
luftning af tagrum.
Man har dog ikke ommuret de løse sten ifm. dette arbejde.
Ifm. nedbrydning af facademur, ses det at murbindere generelt ikke er placeret efter skifte-
højden og dermed ikke efter binder producentens normale krav om fald mod formuren, hvil-
ket kan give øget risiko for fugtskader, ifm. vand har mulighed for at blive ledt til bagmuren.
Konklusion
Ydervægge og murværk generelt
Områder med nedslidte og nedbrudte mørtelfuger
Områder med nedbrydning af overfladen på facade mursten
Nedslidte og løse elastiske fuger samt fugeslip ved sålbænke
Områder med revnet og løst murværk ved tagudhæng
Bagfald på murbindere
DAI
Holmstrupgårdvej 20A, 8220 Brabrand
Alabu Bolig
Brohusgade 2B, 9000 Aalborg
Dato 17.04.2023
Sag nr. 13803
BOU, Alm.del - 2023-24 - Bilag 76: Henvendelse af 2/4-24 fra Henning Schøn om tilsyn og om boligselskab overholder loven
2846509_0011.png
Inspektionsrapport
Plus Bolig, afd. 1056, K. Christensensvej
For ALABU
1.5.3
Tagkonstruktion og tagrum
Taget har ca. 15 graders taghældning og er udført som saddeltag med valme og en gitter-
spærskonstruktion.
De oprindelige fibercement bølgeplader er udskiftet til tagpap på brædder.
Der er adgang til de uudnyttede tagrum, via loftlem i Baderum.
Der er ikke udført ny loftlem og den oprindelige er hverken tætsluttende eller isoleret.
Der er dog i loftskakten, en løs EPS isoleringsplade på ca. 200-250 mm, men ligges den ikke
helt tæt til lemmen, vil den have meget begrænset isoleringseffekt. Isoleringspladen vanske-
liggør også adgangen til tagrum.
Der skabes tagrumsventilation via ventileret rygning og klipfisk i valme, samt ved udhæng.
Afdelingens formand oplyser, at underbeklædningen for nyligt er ændret, for at sikre bedre
mulighed for udluftning af tagrum.
Der er kun 2 stk. klipfisk i valme, hvilket normalt ikke er tilstrækkeligt til at sikre korrekt
ventilering af tagrum. Der er dog god mulighed for tværventilation via udhænget på 3 faca-
der og der ses generelt ikke problemer pga. af forhøjet fugtighed.
Side 10
Alle tagrum er efterisoleret, ifm. tagudskiftningen, så der i dag er ca. 450 mm.
Gangbro er hævet ifm. efterisoleringen, men generelt er der ikke den krævede fri afstand på
50 mm mellem isolering og brædder.
Det ser dog umiddelbart ikke ud til at give problemer, her 7-8 år efter tagudskiftningen.
DAI
Holmstrupgårdvej 20A, 8220 Brabrand
Alabu Bolig
Brohusgade 2B, 9000 Aalborg
Dato 17.04.2023
Sag nr. 13803
BOU, Alm.del - 2023-24 - Bilag 76: Henvendelse af 2/4-24 fra Henning Schøn om tilsyn og om boligselskab overholder loven
2846509_0012.png
Inspektionsrapport
Plus Bolig, afd. 1056, K. Christensensvej
For ALABU
Side 11
I nr. 46 har aftræksrør fra bad, været faldet af taggennemføringen. Det er monteret igen,
men først efter at der er sket stor skimmel vækst på spær og brædder i en stor del af tag-
rummet. Afdelingens formand oplyser at skader er udbedret og skimmel er bekæmpet.
Ved inspektionen er overflader i tagrummet ikke fugtige.
I nr. 40 er aftræksrør fra bad faldet af taggennemføringen. Det ses at rør er forsøgt monte-
ret med tape og ikke med spændbånd, som det generelt ses i øvrige boliger. Røret vurderes
at være faldet af for nyligt, da der ikke er tegn på fugt i tagrummet. Aftræksrør skal gen-
monteres straks for at undgå opfugtning og skimmel som det ses sket i nr. 46.
I nr. 42 er der fugt ved taggennemføringen og årsagen skal afklares og udbedres.
DAI
Holmstrupgårdvej 20A, 8220 Brabrand
Alabu Bolig
Brohusgade 2B, 9000 Aalborg
Dato 17.04.2023
Sag nr. 13803
BOU, Alm.del - 2023-24 - Bilag 76: Henvendelse af 2/4-24 fra Henning Schøn om tilsyn og om boligselskab overholder loven
2846509_0013.png
Inspektionsrapport
Plus Bolig, afd. 1056, K. Christensensvej
For ALABU
Side 12
Der er generelt mange revner i de brandadskillende vægge i tagrummet og det ses at en del
af de større revner er forsøgt udbedret med bygge- og/eller brandskum.
Revner i de brandadskillende vægge, i tagrummet, vurderes ikke til kun at være direkte i
forbindelse med de revner der registreres i de underliggende vægge i boligerne.
Der er andre forhold, så som fastgørelser af spær, grater der krydser vægge og en tagud-
skiftning i 2015, der kan have sammenhæng med de registrerede revner.
Dampspærre er generelt ikke tapet eller klæbet mod tilstødende bygningsdele, der kan dog
ikke registreres fugt problemer på træværk, hvor isoleringen blev fjernet ifm. besigtigelsen.
Foto viser dampspærre og loftforskalling ved hhv. loftlem og lejlighedsskel.
Ved loftlem burde dampspærren være ført med op til overkant af karmen, ifm. efterisolerin-
gen.
Inde i boligen, kan der ses striber på væg under skyggeliste, som indikerer at der trænger
luft ind fra tagrummet pga. utæt dampspærre.
DAI
Holmstrupgårdvej 20A, 8220 Brabrand
Alabu Bolig
Brohusgade 2B, 9000 Aalborg
Dato 17.04.2023
Sag nr. 13803
BOU, Alm.del - 2023-24 - Bilag 76: Henvendelse af 2/4-24 fra Henning Schøn om tilsyn og om boligselskab overholder loven
2846509_0014.png
Inspektionsrapport
Plus Bolig, afd. 1056, K. Christensensvej
For ALABU
Side 13
Konklusion
tagkonstruktion og tagrum
Loftlem er ikke tætsluttende og isoleringsplade vanskeliggør adgangen til tagrum
Selvom der ikke ses fugt i tagrum, vurderes det at reglerne for tilstrækkelig ventilering af
tagrum ved valme ikke er overholdt
Gangbro er hævet, men er generelt ikke friholdt af isolering
Der er aftræksrør uden forbindelse til taggennemføringen
Der ses fugt ved enkelte taggennemføringer
Der er generelt mange revner i de brandadskillende vægge
Dampspærre er generelt ikke tapet eller klæbet mod tilstødende bygningsdele
1.5.4
Vinduer og døre
Vinduer og døre er udskiftet i 2019 til træ-alu. med 3 lag glas.
Vinduer er karm-ramme med faste og topstyrede opluk, fra Hvidbjerg, type ZelaLUX®
Der er spalteventiler i vinduer.
Døre er fra Hvidbjerg, type ALUX®
Konklusion
vinduer og døre
Vinduer og døre er kun få år gamle og der ikke registeret problemer
DAI
Holmstrupgårdvej 20A, 8220 Brabrand
Alabu Bolig
Brohusgade 2B, 9000 Aalborg
Dato 17.04.2023
Sag nr. 13803
BOU, Alm.del - 2023-24 - Bilag 76: Henvendelse af 2/4-24 fra Henning Schøn om tilsyn og om boligselskab overholder loven
2846509_0015.png
Inspektionsrapport
Plus Bolig, afd. 1056, K. Christensensvej
For ALABU
1.5.5
Indvendige overflader og vægge
Vægge
Skillevægge og bagmure er udført af pore-letbeton elementer i 60 cm bredde og fuld højde.
Elementer forudsættes at være limet i de lodrette samlinger, men det er ikke undersøgt.
Alle vægge er beklædt med rutex og malet, undtaget vægge i baderum som er beklædt med
glasvæv og malet. I bruseområdet er der fliser.
Side 14
Det er oplyst, at der gennem tiden er konstateret og kosmetisk udbedret et større omfang af
revner i de indvendige vægge, samt at enkelte revner er forsøgt udbedret med bølgesøm og
punktvis injicering med lim, dog uden den større effekt.
Der er ikke tidligere igangsat en nærmere undersøgelse af årsagen for en evt. udbedring.
Problemet med nye og gentagne revner opstår løbende
Der er besigtiget 5 boliger (nr. 40, 42, 44, 46 og 56), type D, B og A, og de tilgængelige
synlige revner er registreret.
Bolig nr. 56 er stærkt medtaget af revner, nr. 46 har også mange revner, de øvrige boliger
har revner i overskueligt antal.
Bolig nr. 46 og 56 adskiller sig ikke konstruktivt fra de andre boligtyper, og vil kræve yderli-
gere særlige undersøgelser, for at årsagen til afvigelsen kan udredes.
Ved gennemgang af det eksisterende projektmateriale, beskrives leca-letbeton helvægsele-
menter som bagmure og skillevægge, men det er oplyst samt ved besigtigelsen konstateret
at der er anvendt pore-letbeton vægelementer.
Pore-letbeton er et almindeligt materialevalg, men med en lettere rumvægt og på nogle
punkter, med andre egenskaber.
Med udgangspunkt i boligerne 40, 42 og 44, vurderes revnebilledet at være repræsentativt
forekommende, pga. at der som følge af udtørring og almindeligt bygningssvind, ofte vil
fremkomme revner i bygninger.
Dette sker ofte 1
2 år efter huset er opført, men andre mere langsigtede påvirkninger som
differenssætninger mellem terrændæk og sokkel, årstidsbestemt opfugtning og udtørring af
tagkonstruktionen og ekstreme vejrpåvirkninger, kan ligeledes fremme dannelse af revner.
En del af de registrerede revner kan forklares. Revner over vinduer i facader og gavle kan
henføres til løsningen med betonbjælker over de større åbninger. Beton og porebeton arbej-
der ikke ens og det vil ofte medføre revner ved vederlagene.
DAI
Holmstrupgårdvej 20A, 8220 Brabrand
Alabu Bolig
Brohusgade 2B, 9000 Aalborg
Dato 17.04.2023
Sag nr. 13803
BOU, Alm.del - 2023-24 - Bilag 76: Henvendelse af 2/4-24 fra Henning Schøn om tilsyn og om boligselskab overholder loven
2846509_0016.png
Inspektionsrapport
Plus Bolig, afd. 1056, K. Christensensvej
For ALABU
Foto viser typiske revner i bagmure og skillevægge.
Side 15
Foto viser typiske revner ved bjælker over åbninger i bagmure og skillevægge.
Revnerne i lejlighedsskel, kan skyldes svind og udtørringsspændinger og revner i skillevægge
kan opstå som følge af differens mellem gulv og sokkel.
Hvis revnerne ikke tidligere er professionelt udbedret, vil der være årsager som tidligere
nævnt, der vil få en kosmetisk reparation til at svigte og det er kun et spørgsmål om tid før
reven vil opstå igen.
DAI
Holmstrupgårdvej 20A, 8220 Brabrand
Alabu Bolig
Brohusgade 2B, 9000 Aalborg
Dato 17.04.2023
Sag nr. 13803
BOU, Alm.del - 2023-24 - Bilag 76: Henvendelse af 2/4-24 fra Henning Schøn om tilsyn og om boligselskab overholder loven
2846509_0017.png
Inspektionsrapport
Plus Bolig, afd. 1056, K. Christensensvej
For ALABU
Side 16
Statiske problemer kan også til føre til revner og er nærmere beskrevet i afsnit 1.5.6 Byg-
ningsstabilitet.
Der henvises til Bilag 5 BygErfa_980922_Revner i vægge af etagehøje letbetonelementer,
der omhandler årsagerne til udvikling af revner.
Lofter
Udført som gipsplank på forskalling.
Der er ifm. besigtigelsen ikke registreret eller oplyst, at der er problemer med lofter.
Gulve
Udført som parket strøgulve på opklodsning i opholdsrum.
Der er ifm. besigtigelsen ikke registreret eller oplyst, at der er problemer med strøgulve.
Udført som støbt beton belagt med vinyl i baderum.
Der er ifm. besigtigelsen ikke registreret eller oplyst, at der er problemer med gulve i bade-
rum.
Konklusion
indvendige overflader og vægge
Der er generelt revner i vægge, i større eller mindre omfang og nye opstår løbende
Der er ikke registreret problemer med lofter og gulve
1.5.6
Bygningsstabilitet
Generelt har bebyggelsen problemer med at der er, samt løbende opstår nye revner i de ind-
vendige vægge. Afdelingens formand oplyser, at nye revner generelt opstår ved færdsel i
tagrum og på tage, samt ved blæsevejr. Ifm. blæsevejr høres der også høje lyde når vinden
rykker i bygningerne.
Der er udført en overslagsberegning på bygningernes overordnede stabilitet og denne vurde-
res, overordnet betragtet, som at være OK, men overslagsberegningen forudsætter også, at
forankringer mellem tagkonstruktionen og fundamenter, er udført korrekt og har den tilsig-
tede funktion.
Undersøgelser af forankringer i boligerne 40 og 44 har vist, at der ved de fritlagte trækbånd,
ikke er udført den nødvendige opstramning af trækbåndene og der er således ikke den tilsig-
tede statiske funktion omkring forankringen af tagkonstruktionen samt forankringen af de
tilstødende vægflader.
DAI
Holmstrupgårdvej 20A, 8220 Brabrand
Alabu Bolig
Brohusgade 2B, 9000 Aalborg
Dato 17.04.2023
Sag nr. 13803
BOU, Alm.del - 2023-24 - Bilag 76: Henvendelse af 2/4-24 fra Henning Schøn om tilsyn og om boligselskab overholder loven
2846509_0018.png
Inspektionsrapport
Plus Bolig, afd. 1056, K. Christensensvej
For ALABU
Side 17
Foto angiver at trækbåndet kan flyttes i hele hulmurens dybde og var murhullet større,
kunne det med lethed flyttes endnu mere.
Trækbåndet kan konstateres at være meget slapt og således stort set uden den ønskede
funktion.
Samme slaphed på trækbåndet kunne også konstateres på den modsatte facade.
Slapt trækbånd ved
travers mellem spær
Manglende søm
i bjælkesko
Der ses lodrette og vandrette revner bagmuren.
På nedenstående foto, som er fra midt af facadehøjden (ca. 1,3 m), er der revner i lim sam-
lingen mellem vægelementer og revner hvor skillevæg er fastholdt med søm gennem bag-
muren.
På foto næste side, som taget er ved tagfoden, er der revner i toppen af vægelementet.
Iht. tegninger, er murrem sømmet fast til toppen af væggen. De løse trækbånd, sammen
med den deraf ustabile tagkonstruktion, er sandsynligvis en medvirkende årsag til disse rev-
ner.
DAI
Holmstrupgårdvej 20A, 8220 Brabrand
Alabu Bolig
Brohusgade 2B, 9000 Aalborg
Dato 17.04.2023
Sag nr. 13803
BOU, Alm.del - 2023-24 - Bilag 76: Henvendelse af 2/4-24 fra Henning Schøn om tilsyn og om boligselskab overholder loven
2846509_0019.png
Inspektionsrapport
Plus Bolig, afd. 1056, K. Christensensvej
For ALABU
Side 18
Trækbånd fastgjort på siden af spær, er meget slapt.
Der er lodret revne i lim samlingen mellem vægelementer og denne revne ses også inde i
boligen.
DAI
Holmstrupgårdvej 20A, 8220 Brabrand
Alabu Bolig
Brohusgade 2B, 9000 Aalborg
Dato 17.04.2023
Sag nr. 13803
BOU, Alm.del - 2023-24 - Bilag 76: Henvendelse af 2/4-24 fra Henning Schøn om tilsyn og om boligselskab overholder loven
2846509_0020.png
Inspektionsrapport
Plus Bolig, afd. 1056, K. Christensensvej
For ALABU
Side 19
Når der tilsyneladende ikke er brugt båndstrammer, og det ikke er lykkedes for den udfø-
rende entreprenør at få strammet båndene uden, er det højst sandsynligt, at det ligeledes er
gældende for de resterende båndforankringer i større eller mindre grad og at det generelt
bør forventes at der er mangelfuld forankring af tagkonstruktionen.
Den overordnede bygningsstabilitet må, pga. disse forhold, betragtes som værende svækket,
hvilket med sandsynlighed kan være en medvirkende årsag til revnedannelser i de indven-
dige vægge.
Som nævnt i pkt. 1.4, viser tegningerne at bagmure og skillevægge er udført af leca-letbe-
ton helvægselementer.
Det kan ikke udelukkes at man oprindeligt har projekteret med helvægselementer, men så
ifm. opførelsen har ændret disse til porebetonelementer i 60 cm bredde.
Det er desværre før set at revision af statiske beregninger ikke blev udført, og selvom at for-
udsætningerne er ændret, er der i øvrigt ikke ændret noget forankringsmæssigt som tager
højde for de ændrede statiske forhold.
Der henvises til Bilag 5 BygErfa_980922_Revner i vægge af etagehøje letbetonelementer,
der omhandler årsagerne til udvikling af revner.
Det anbefales at der udføres en mere fyldestgørende gennemgang og registrering af flere
boliger, som grundlag for en evt. løsning.
Konklusion
bygningsstabilitet
Der er overordnet betragtet problemer med bygningernes stabilitet bl.a. pga. af løse
trækbånd
Det kan generelt forventes at der er mangelfuld forankring af tagkonstruktionen bl.a. pga.
af løse trækbånd
Der bør udføres en mere fyldestgørende gennemgang og registrering af alle tagkonstruk-
tionens forankringer
1.5.7
Ventilation
I køkken, er der monteret emhætte med afkast over tag.
I baderum, er der monteret 1-rumsventilatorer med afkast over tag.
Tilluft opnås via opholdsrummene, ved at åbne vinduer og/eller de indbyggede spalteventiler
i vinduer.
Konklusion - ventilation
Boligerne har begrænset mulighed for ventilation, specielt hvis beboere ikke benytter
spalteventilerne i vinduer eller åbner vinduer ved brug af emhætte eller ventilator i bade-
rum
Det bør overvejes at etablere ventilation med varmegenvinding i boligerne
DAI
Holmstrupgårdvej 20A, 8220 Brabrand
Alabu Bolig
Brohusgade 2B, 9000 Aalborg
Dato 17.04.2023
Sag nr. 13803
BOU, Alm.del - 2023-24 - Bilag 76: Henvendelse af 2/4-24 fra Henning Schøn om tilsyn og om boligselskab overholder loven
2846509_0021.png
Inspektionsrapport
Plus Bolig, afd. 1056, K. Christensensvej
For ALABU
1.6
Plus Boligs administration af afdelingen
Overordnet set, vurderes det at Plus Boligs administration har svigtet afdelingen ved ikke at
have udført deres pligter og opgaver som en ansvarlig boligorganisation.
Begrundelse:
- skal ses ift. den manglende undersøgelse og udbedring af de bygningsmæssige problemer
bl.a. i form af revner i vægge, der går helt tilbage til bebyggelsens opførelse.
Det oplyses af afdelingens formand, at revner har været et kendt problem i mange år, hvil-
ket også fremgår af afdelingens budgetter.
- skal ses ift. at Plus Bolig ikke har benyttet muligheden til selv, eller bede et rådgivnings-
firma om at undersøge årsagen til de tilbagevende revnedannelser i de indvendige vægge,
ifm. tagudskiftningen i 2015.
- Byggeskadefondens 1 års gennemgang har påpeget flere svigt/mangler ifm. med tagud-
skiftningen.
- Plus Bolig har ikke fremvist/fremsendt det krævede dokumentationsmateriale til Byggeska-
defonden ifm. 1 års gennemgangen.
- Plus Bolig har kun udført delvis udbedring, selvom der er risiko for at nogle af de påpegede
svigt/mangler ifm. 1 års gennemgangen kan medføre store og omkostningstunge proble-
mer hvis de ikke udbedres.
- Byggeskadefondens 5 års gennemgang påpeger at der er delvis manglende udbedring af
svigt/mangler ifm. med tagudskiftningen.
- Plus Bolig har stadigt ikke fremvist/fremsendt det krævede dokumentationsmateriale til
Byggeskadefonden.
- Plus Bolig har stadigt valgt ikke udbedre alle fejl og mangler påpeget ved 1 års gennem-
gangen igen ved 5 års gennemgangen, selvom de kan medføre store og omkostningstunge
problemer hvis de ikke udbedres.
Konklusion
Det manglende dokumentationsmateriale ifm. Byggeskadefondens gennemgange, kan få be-
tydning ifm. en evt. udbedring af svigt/mangler.
Ligeledes er garantier og forsikringer, ifm. tagudskiftningen, uden dækning ved de
svigt/mangler der ikke er udbedret, eller udført som en godkendt løsning af Byggeskadefon-
den.
Svigt/mangler overfor entreprenørens 5 års ansvar, kunne være udført af entreprenøren
uden omkostninger for afdelingen, men er ikke er påpeget rettidigt af Plus Bolig.
I det tilfælde, at der senere skulle opstå en skade pga. manglende udbedring af svigt/mang-
ler, er det således afdelingen selv der skal betale for en udbedring, hvilket vil påføre afdelin-
gen og beboerne unødvendigt store omkostninger som vil påvirke afdelingens økonomi nega-
tivt.
De nuværende og fremtidige negative økonomiske konsekvenser, ifm. tagudskiftningen,
kunne være undgået hvis Plus Bolig havde udført deres pligter og opgaver som en ansvarlig
organisation.
Samtidigt vurderes det at de negative økonomiske konsekvenser i stort omfang burde være
dækket af henholdsvis Byggeskadefonden og/eller entreprenøren, hvis Plus Bolig havde ud-
ført deres pligter og opgaver rettidigt.
Side 20
DAI
Holmstrupgårdvej 20A, 8220 Brabrand
Alabu Bolig
Brohusgade 2B, 9000 Aalborg
Dato 17.04.2023
Sag nr. 13803
BOU, Alm.del - 2023-24 - Bilag 76: Henvendelse af 2/4-24 fra Henning Schøn om tilsyn og om boligselskab overholder loven
2846509_0022.png
Inspektionsrapport
Plus Bolig, afd. 1056, K. Christensensvej
For ALABU
1.7
Konklusion og løsningsforslag
Som det fremgår af denne inspektion, er der i afdelingen tydelige tegn på slitage og utids-
svarende konstruktioner og installationer, samt alvorlige problemer med forankringen af tag-
konstruktionen.
Manglende udbedring af de bygningsmæssige problemer med revner mv. samt manglende
opfølgning på Byggeskadefondens anmærkninger ifm. tagudskiftningen, indikerer ligeledes at
Plus Boligs administration har været mangelfuld.
Afdelingen har generelt været overladt til afdelingsbestyrelsen, som har forsøgt at vedlige-
holde husene frem til nu, med de begrænsede midler og muligheder de har fået fra Plus Bo-
lig.
De partielle renoveringer som udføres ad hoc og ved fraflytninger, løser hverken proble-
merne eller er en fortsat økonomisk rentabel løsning.
Derfor bør der snarest igangsættes en udbedring af bebyggelsens problemer, hvor man
bedst muligt får løst de generelle byggetekniske problemer, således evt. ukontrollabel ska-
desudvikling kan undgås.
Inden der igangsættes en udbedring, bør man udarbejde en mere tilbundsgående tilstands-
rapport, hvor man gennemgår alle konstruktioner og installationer meget grundigt, suppleret
med en række destruktive indgreb.
Som tekniske rådgivere kender DAI ikke forlods boligselskabets ambitionsniveau.
Men vi vil anbefale, at man igangsætter en udbedring, da der er gode muligheder for at ud-
bedre de byggetekniske problemer.
Side 21
DAI
Holmstrupgårdvej 20A, 8220 Brabrand
Alabu Bolig
Brohusgade 2B, 9000 Aalborg
Dato 17.04.2023
Sag nr. 13803
BOU, Alm.del - 2023-24 - Bilag 76: Henvendelse af 2/4-24 fra Henning Schøn om tilsyn og om boligselskab overholder loven
2846509_0023.png
Inspektionsrapport
Plus Bolig, afd. 1056, K. Christensensvej
For ALABU
1.8
Økonomisk overslag ved udbedring
Alle beløb er overslagspriser ekskl. moms og mængder skal tages med forbehold.
Der er prissat ift. at de enkelte problemer udbedres særskilt, men ved alle boliger samtidigt.
Der bør kunne opnås reduktion i priser, hvis flere eller alle problemer løses på én gang.
Side 22
Økonomisk konsekvens ift. 1 og 5 års eftersynet
Aftræksrør i tagrum - Kontrol af, samt korrekt montering med spændebånd eller lign.
Antal Enhed
á kr.
ekskl. moms
inkl. moms
44 stk.
250
= kr. 11.000
13.750
- bør udbedres straks -
Utæt taggennemføring - Kontrol af, samt korrekt montering og tætning.
Antal Enhed
á kr.
ekskl. moms
inkl. moms
44 stk.
250
= kr. 11.000
13.750
- bør udbedres straks -
Dampspærre tætning ved loftlem.
ekskl. moms
inkl. moms
= kr. 5.000
6.250
Antal Enhed
20 stk.
á kr.
250
- bør udbedres snarest -
Antal Enhed
20 stk.
Øvrig kontrol og tætning af hele dampspærren.
á kr.
ekskl. moms
inkl. moms
10.000
= kr. 200.000
250.000
- bør udbedres snarest -
Gangbro der ikke er friholdt af isolering.
ekskl. moms
inkl. moms
= kr. 100.000
125.000
- bør udbedres snarest -
Antal Enhed
20 stk.
á kr.
5.000
Antal Enhed
32 stk.
Klipfisk eller hætte ved valm, for ventilering af tagrum.
á kr.
ekskl. moms
inkl. moms
2.000
= kr. 64.000
80.000
- bør udbedres snarest -
Reparation af revnet og løst murværk ved tagudhæng. inkl. demontering af udhængsplader.
Antal Enhed
á kr.
ekskl. moms
inkl. moms
50 lbm.
750
= kr. 37.500
46.875
- bør udbedres -
Samlet beløb iht. ovenstående.
ekskl. moms
inkl. moms
= kr. 428.500
535.625
Økonomisk konsekvens ift. revner i indvendige vægge
Revner i indvendige vægge, inkl. malerarbejder. (Ved 8 revner á 2,5 m i hver bolig)
Antal Enhed
á kr.
ekskl. moms
inkl. moms
20 stk.
25.000
= kr. 500.000
625.000
- bør udbedres straks -
Prissættelsen er ved udførelse ifm. fraflytninger.
Er boligen beboet, kan det forventes at prisen vil være op til det dobbelte
og dermed
kr. 1.000.000,-
Forankring af tagkonstruktion ved opstramning af F1 - F2 trækbånd,
inkl. nødvendig nedbrydning af tag og murværk.
Antal Enhed
á kr.
ekskl. moms
inkl. moms
138 stk.
10.000
= kr. 1.380.000
1.725.000
- bør udbedres straks -
Samlet beløb iht. ovenstående.
ekskl. moms
inkl. moms
= kr. 1.880.000
2.350.000
DAI
Holmstrupgårdvej 20A, 8220 Brabrand
Alabu Bolig
Brohusgade 2B, 9000 Aalborg
Dato 17.04.2023
Sag nr. 13803
BOU, Alm.del - 2023-24 - Bilag 76: Henvendelse af 2/4-24 fra Henning Schøn om tilsyn og om boligselskab overholder loven
2846509_0024.png
Inspektionsrapport
Plus Bolig, afd. 1056, K. Christensensvej
For ALABU
Side 23
Økonomisk konsekvens ift. øvrige problemer
Skader og revner i sokkelpuds, inkl. frigravning til under terrændæk.
Antal Enhed á kr.
ekskl. moms
inkl. moms
470 lbm.
2.000 = kr. 940.000
1.175.000
- bør udbedres snarest -
Partiel udbedring af nedbrudte mørtelfuger.
á kr.
ekskl. moms
inkl. moms
1.000 = kr. 16.000
20.000
- bør udbedres snarest -
Udskiftning af elastiske fuger ved sålbænke.
ekskl. moms
inkl. moms
= kr. 29.500
36.875
- bør udbedres snarest -
Antal Enhed
16 m
2
Antal Enhed
59 stk.
á kr.
500
Antal Enhed
40 m
2
Udskiftning af mursten med nedbrydning af overfladen.
á kr.
ekskl. moms
inkl. moms
2.000 = kr. 80.000
100.000
- bør udbedres -
Reparation af revnet og løst murværk ved tagudhæng. inkl. demontering af udhængsplader.
Antal Enhed á kr.
ekskl. moms
inkl. moms
50 lbm.
750 = kr. 37.500
46.875
- bør udbedres -
Bagfald på murbindere. (Vil kræve komplet ommuring, inkl. følgearbejder)
Antal Enhed á kr.
ekskl. moms
inkl. moms
2
1000 m
3.000 = kr. 3.000.000
3.750.000
- kræver umiddelbart ikke udbedring -
Vi håber, at inspektionen i første omgang giver et godt indtryk af de forskellige emner og
deltager gerne i en nærmere dialog omkring de næste skridt.
DAI
April 2023
Thomas Munk Larsen
Bygherrerådgiver
Jens Breiner
Ingeniør
DAI
Holmstrupgårdvej 20A, 8220 Brabrand
Alabu Bolig
Brohusgade 2B, 9000 Aalborg
Dato 17.04.2023
Sag nr. 13803
BOU, Alm.del - 2023-24 - Bilag 76: Henvendelse af 2/4-24 fra Henning Schøn om tilsyn og om boligselskab overholder loven
2846509_0025.png
Bilag 1
Udvalgte tegninger ifm. afdelingens opførelse 1993
Plus Bolig, afd. 1056, K. Christensensvej
Udført for ALABU Bolig
BOU, Alm.del - 2023-24 - Bilag 76: Henvendelse af 2/4-24 fra Henning Schøn om tilsyn og om boligselskab overholder loven
2846509_0026.png
E(99)1.12
BOU, Alm.del - 2023-24 - Bilag 76: Henvendelse af 2/4-24 fra Henning Schøn om tilsyn og om boligselskab overholder loven
2846509_0027.png
E(99)1.17
BOU, Alm.del - 2023-24 - Bilag 76: Henvendelse af 2/4-24 fra Henning Schøn om tilsyn og om boligselskab overholder loven
2846509_0028.png
BOU, Alm.del - 2023-24 - Bilag 76: Henvendelse af 2/4-24 fra Henning Schøn om tilsyn og om boligselskab overholder loven
2846509_0029.png
BOU, Alm.del - 2023-24 - Bilag 76: Henvendelse af 2/4-24 fra Henning Schøn om tilsyn og om boligselskab overholder loven
2846509_0030.png
BOU, Alm.del - 2023-24 - Bilag 76: Henvendelse af 2/4-24 fra Henning Schøn om tilsyn og om boligselskab overholder loven
2846509_0031.png
BOU, Alm.del - 2023-24 - Bilag 76: Henvendelse af 2/4-24 fra Henning Schøn om tilsyn og om boligselskab overholder loven
2846509_0032.png
Bilag 2
Udvalgte tegninger ifm. tagudskiftning 2015
Plus Bolig, afd. 1056, K. Christensensvej
Udført for ALABU Bolig
BOU, Alm.del - 2023-24 - Bilag 76: Henvendelse af 2/4-24 fra Henning Schøn om tilsyn og om boligselskab overholder loven
2846509_0033.png
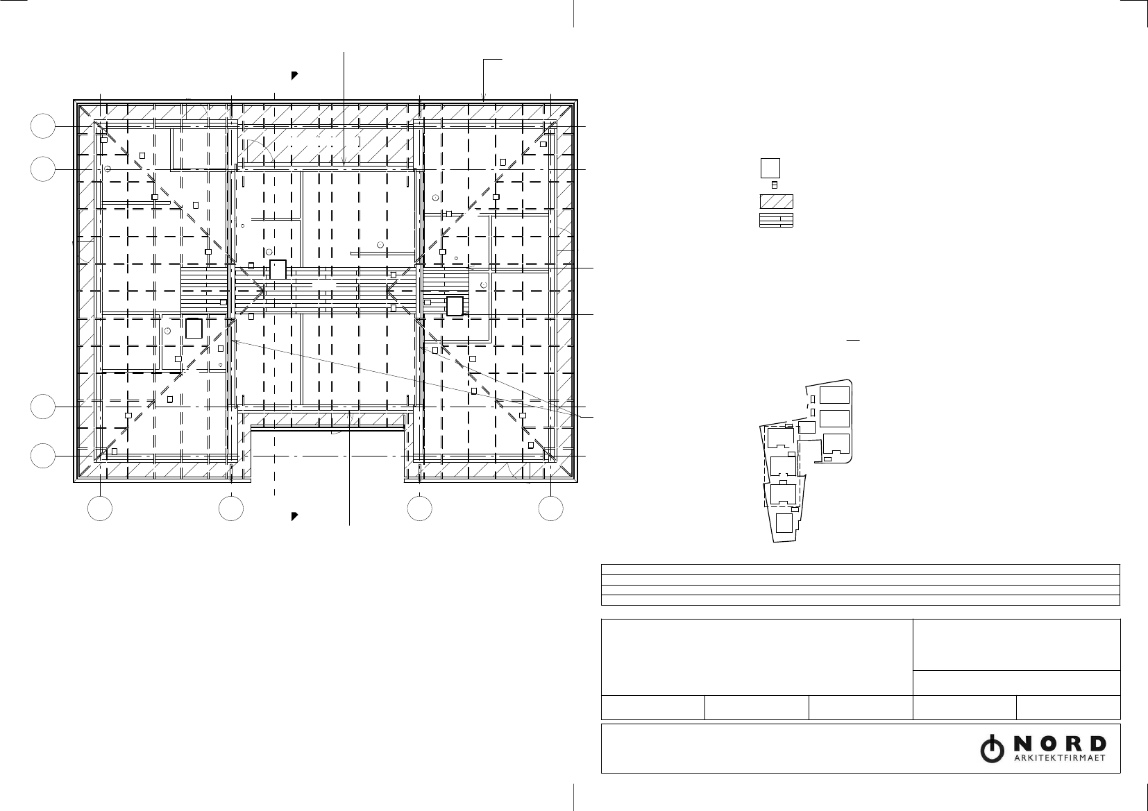
(99)3.01
Bygningsdelsbeskrivelse
27.01
Tagkonstruktion:
2 lag tagpap oplagt iht. gældende TOR-anvisninger.
25x110 mm rupløjede brædder.
Min. 50 mm ventilationsspalte mellem brædder og ny 200 mm isolering ved skråsider.
Der etableres ny ventileret tagfodsopbygning iht. detaljetegninger.
Der etableres ny ventileret rygning iht. detaljetegninger.
Der monteres klipfisk imellem hvert spærfag, forskudt på hver side af grat.
Eternitbeklædning af stern:
Eksis. Eternitbeklædning på stern demonteres og bortskaffes.
Ny beklædning udføres i 6 mm eternitplade fastgjort med hvide indfarvet skruer.
Ny beklædning monteres på eksis. og nyt træunderlag (se detaljer) med EPDM-underlag.
Samlinger skal være identiske og tilpasses eksisterende underbeklædning.
Eksisterende underbeklædning eftergås/efterskrues i nødvendigt omfang
og afvaskes/afrenses inden aflevering.
Isolering af tagflade:
Ny 200 mm mineraluldsgranulat kl. 44 udlægges over hele tagfladen.
Isolering føres i tæt forbindelse med alle spærgennemføringer m.m.
Der etableres ny vindpladekonstruktion langs facader & gavle iht. Ark. Princip detaljer.
Eksisterende isolering bibeholdes.
Opfugtet/skadet isolering udskiftes.
Eksisterende gangbro hæves med min. 50 mm ventilationsspalte mellem isolering og brædder.
Tagrende og nedløb:
Tagrender og nedløb af Zink 14 iht. beskrivelse.
Tagrender fastgøres med varmgalvaniseret rendejern m. ca. 300 mm skaft.
Nedløb fastgøres med hængselsstifter som fastskrues til murværk/let facadebeklædning.
Faldstammeudluftning:
Faldstammeudluftning som JUAL SS med flange til tagpaptag jf. beskrivelse.
Udluftningshætte placeres centralt mellem listedækning så vidt muligt.
og i forhold til eksisterende faldstamme.
Eksisterende fladstamme suppleres i nødvendigt omfang for tilslutning i tagrum.
Faldstammeudluftning levers sortmalet.
Taghætter for rumaftræk:
Der skal leveres og monteres nye sortlakerede taghætter for rumaftræk.
Udluftningshætter placeres centralt mellem listedækning så vidt muligt
og i forhold til eksisterende rumaftræk.
Eksisterende rumaftræk suppleres i nødvendigt omfang for tilslutning i tagrum.
Alle suppleringer skal kondensisoleres med 50 mm trådvævsmåtte med mineraluld.
Taghætter skal leveres med 25 mm indbygget kondensisolering.
Taghætter skal tilpasses til den aktuelle hældning (må ikke være justerbar)
Taghætter skal levers med flange for montage til bræddeunderlag og tagpap.
Loftlem:
Karm til loftlem forlænges til 50 mm over færdig isoleringslag.
Lodret vindplade forlænges.
Tegn. nr.:
Lodret vindplade v.
indgangsparti forhøjes.
Fuges langs spærsider og mod murværk.
50 mm fri luftspalte mellem underside
brædder og vindplade sikres.
Tegn. nr.:
(99)5.02
Tegn. nr.:
37.03
27.01
(99)5.03
27.02
(99)5.01
27.03
37.03
27.03
37.04
37.01
37.01
37.01
27.02
27.02
37.02
Principsnit A-A
37.03
37.04
Signaturforklaring
Ny isolering, granulat.
Eksist. isolering.
Udbudsmateriale
Rev D
Rev C
Rev B
Rev A
Dato
Dato
Dato
Dato
BYGHERRE:
PlusBolig, Afdeling 56
K. Christensens Vej 20-60
TEGN. NR.:
BYGGESAG:
Tagrenovering
(99)3.01
MÅL
EMNE:
UDARB.
CBC - Principsnit A-A
PRY
KONTR.
1 : 50
29.05.2015
SAG
LB
GODK.
HL
DATO
1466
Kjellerupsgade 22
9000 Aalborg
Telefon 99 35 20 00
Fax 99 35 20 01
e-mail: [email protected]
www.nord-as.dk
BOU, Alm.del - 2023-24 - Bilag 76: Henvendelse af 2/4-24 fra Henning Schøn om tilsyn og om boligselskab overholder loven
2846509_0034.png
(99)5.01
Opretning af eksisterende spær m.
påskruede påforinger af 45x95/125 mm tømmer.
Udføres kun partielt iht. beskrivelse.
2 lag tagpap med listedækning.
25x110 mm rupløjede brædder.
Ny 200 mm granulat isolering.
min. 100 mm
Min. 30 mm lufspalte mellem
vindplade og undertag.
55x55x70 mm trekantsliste i mineraluld bitumencoated
eller trælister iht. beskrivelse, oplagt pr. c/c 1085 mm.
Liserer monteres med symmetrisk inddeling på tagflade
samt iht. arkitekt facade tegninger.
Ny 15 mm vindplade monteret på lister langs spærsider.
Tætnes med fuge mod alle afgrænsninger.
45x95 mm tømmer monteret på eksisterende ydervæg el.
mellem spær som underlag for vindplade.
fuges langs alle afgrænsninger.
Insektnet monteres til sternunderlag
og eksisterende ydervæg.
38x73 mm lægter monteret mellem spær
som underlag for rendejernsmontering.
300
200
30
Galvaniseret rendejern med skaft
nedrillet i bræddeunderlag.
Sortmalet alu-fodblik.
15
Der monteres EPDM-bånd på
eksisterende sternunderlag
som eternit fastgøres til.
Eksisterende ydervæg
Nye tagrender + nedløb i zink 14 tilsnit 333 oplagt i nye rendejern.
Nederste del af nedløb udføres i galv. stålrør iht. beskrivelse.
15
Sternbeklædning af eternit
udskiftes til ny tilpasset
opretning/ny tagopbygning.
Sternunderlag.
Eksisterende underbeklædning bibeholdes.
Det eftergås og der udføres supplerende
efterskruning jf. beskrivelse.
Evt. skadede plader skiftes iht. aftale m. tilsyn
Udbudsmateriale
Rev D
Rev C
Rev B
Rev A
Dato
Dato
Dato
Dato
BYGHERRE:
PlusBolig, Afdeling 56
K. Christensens Vej 20-60
TEGN. NR.:
BYGGESAG:
Tagrenovering
(99)5.01
MÅL
EMNE:
UDARB.
Principdetalje ved tagfod
PRY
KONTR.
1 : 10
29.05.2015
SAG
LB
GODK.
HL
DATO
1466
Kjellerupsgade 22
9000 Aalborg
Telefon 99 35 20 00
Fax 99 35 20 01
e-mail: [email protected]
www.nord-as.dk
BOU, Alm.del - 2023-24 - Bilag 76: Henvendelse af 2/4-24 fra Henning Schøn om tilsyn og om boligselskab overholder loven
2846509_0035.png
(99)5.02
Ventileret rygningsudluftning leveres
i hele tagets længde med endeluk og sortmalede
kanter ved alle synlige flader jf. beskrivelsen.
38x73 mm lægter til understøtning af frie bræddeender.
Monteres i hele bygningens længde.
1 lag overpap påsvejses
rygningselement. Der udføres
endeluk ved overgang til valme.
2 lag tagpap med listedækning.
25x110 mm rupløjede brædder.
35
Eksis. spær
c/c
1000.
Opretning af eksisterende spær m.
påskruede påforinger af 45x95/125 mm tømmer.
Udføres kun partielt iht. beskrivelse.
55x55x70 mm trekantsliste i mineraluld bitumencoated
eller trælister iht. beskrivelse, oplagt pr. c/c 1085 mm.
Lister monteres med symmetrisk inddeling på tagflade
samt iht. arkitekt facade tegninger.
Udbudsmateriale
Rev D
Rev C
Rev B
Rev A
Dato
Dato
Dato
Dato
BYGHERRE:
PlusBolig, Afdeling 56
K. Christensens Vej 20-60
TEGN. NR.:
BYGGESAG:
Tagrenovering
(99)5.02
MÅL
EMNE:
UDARB.
Principdetalje ved tagryg
PRY
KONTR.
1:5
29.05.2015
SAG
LB
GODK.
HL
DATO
1466
Kjellerupsgade 22
9000 Aalborg
Telefon 99 35 20 00
Fax 99 35 20 01
e-mail: [email protected]
www.nord-as.dk
BOU, Alm.del - 2023-24 - Bilag 76: Henvendelse af 2/4-24 fra Henning Schøn om tilsyn og om boligselskab overholder loven
2846509_0036.png
Vindplade forhøjes ved
overdækket indgang.
Tagrende.
DBA - Principsnit
(99)3.03
TN
TN
TN
TH
Nye Zink 14 tagneløbsrør iht. beskrivelse.
Eksisterende taghætte demonteres og bortskaffes.
Ny sort taghætte iht. beskrivelse m. påsvejst flange
for montage til tagpap.
Eksisterende faldstammeudluftning over tag demonteres
og bortskaffes. Ny sort faldstammeudluftning iht.
beskrivelse monteres. Evt. vacuumventiler føres over tag
iht. beskrivelse.
Loftlem, eksisterende
Klipfisk
Eksisterende udhæng
Signaturforklaring
(99)1.12
3.D
Eksisterende udhæng
FOT
3.C
TH
LL
ra
tli
nj
e
G
TH
G
ra
tli
nj
e
G
e
nj
tli
ra
FOT
TH
TH
LL
Kiplinje
LL
FOT
TH
Eksisterende gangbro der hæves
Note
Eksisterende opklodsning
på gangbroer forhøjes.
Lysningsplader til loftlemme forhøjes.
Tegning er lavet på baggrund af eksisterende
tegningsmateriale, der vil derfor kunne forekomme unøjagtigheder,
som ombygningen skal tilpasses efter.
Eksisterende bølge Eternit tagbelægning incl. lægteunderlag
og tagfodsopbygning demonteres og bortskaffes.
Der etableres ny 2 lags tagpaptag med listedækning på brædder iht. beskrivelse
Alle eksisterende tagrender (incl. rendejern) + tagnedløbsrør udskiftes til nye i zink.
Der monteres ny sternbeklædning i hvid eternit langs facader/gavle
tilpasset ny tagopbygning/opretning. Eksisterende underbeklædning bibeholdes.
Taghætter skal placeres centreret mellem listedækning,
kanaler+isol. til hætter skal suppleres herfor
Stilladser må ikke fastgøres i de lette facadeplader.
Der må derfor i nødvendigt omfang forventes ”selvstående” stilladser, og ”broopbygninger”
Hele loftfladen efterisoleres med mineraluldsgranulat jf. beskrivelse.
FOT
TH
LL
G
e
nj
tli
ra
A
Eksisterende lejlighedsskillevæg.
TN
A
DBA
A
DBA
A
TN
TN
DBA - Principsnit
(99)3.03
DBA
A
FH
ABA
A
CBC
CBC
3.B
3.A
3.1
Bygning DBA
3.2
3.3
Vindplader forlænges
langs alle gavle/facader.
3.4
DA
B
Udbudsmateriale
Rev D
Rev C
Rev B
Rev A
Dato
Dato
Dato
Dato
BYGHERRE:
PlusBolig, Afdeling 56
K. Christensens Vej 20-60
TEGN. NR.:
BYGGESAG:
Tagrenovering
(99)1.12
MÅL
DATO
EMNE:
UDARB.
Fremtidige forhold, Tagplan - bygning DBA
PRY
KONTR.
1:100
29.05.2015
SAG
LB
GODK.
HL
1466
Kjellerupsgade 22
9000 Aalborg
Telefon 99 35 20 00
Fax 99 35 20 01
e-mail: [email protected]
www.nord-as.dk
BOU, Alm.del - 2023-24 - Bilag 76: Henvendelse af 2/4-24 fra Henning Schøn om tilsyn og om boligselskab overholder loven
2846509_0037.png
Foto
Udvendigt
Indvendigt bolig nr. 40, 42, 44, 46, 56
Bilag 3
Plus Bolig, afd. 1056, K. Christensensvej
Udført for ALABU Bolig
BOU, Alm.del - 2023-24 - Bilag 76: Henvendelse af 2/4-24 fra Henning Schøn om tilsyn og om boligselskab overholder loven
2846509_0038.png
BOU, Alm.del - 2023-24 - Bilag 76: Henvendelse af 2/4-24 fra Henning Schøn om tilsyn og om boligselskab overholder loven
2846509_0039.png
BOU, Alm.del - 2023-24 - Bilag 76: Henvendelse af 2/4-24 fra Henning Schøn om tilsyn og om boligselskab overholder loven
2846509_0040.png
BOU, Alm.del - 2023-24 - Bilag 76: Henvendelse af 2/4-24 fra Henning Schøn om tilsyn og om boligselskab overholder loven
2846509_0041.png
BOU, Alm.del - 2023-24 - Bilag 76: Henvendelse af 2/4-24 fra Henning Schøn om tilsyn og om boligselskab overholder loven
2846509_0042.png
BOU, Alm.del - 2023-24 - Bilag 76: Henvendelse af 2/4-24 fra Henning Schøn om tilsyn og om boligselskab overholder loven
2846509_0043.png
Nr. 40
BOU, Alm.del - 2023-24 - Bilag 76: Henvendelse af 2/4-24 fra Henning Schøn om tilsyn og om boligselskab overholder loven
2846509_0044.png
Nr. 42
BOU, Alm.del - 2023-24 - Bilag 76: Henvendelse af 2/4-24 fra Henning Schøn om tilsyn og om boligselskab overholder loven
2846509_0045.png
BOU, Alm.del - 2023-24 - Bilag 76: Henvendelse af 2/4-24 fra Henning Schøn om tilsyn og om boligselskab overholder loven
2846509_0046.png
Nr. 44
BOU, Alm.del - 2023-24 - Bilag 76: Henvendelse af 2/4-24 fra Henning Schøn om tilsyn og om boligselskab overholder loven
2846509_0047.png
BOU, Alm.del - 2023-24 - Bilag 76: Henvendelse af 2/4-24 fra Henning Schøn om tilsyn og om boligselskab overholder loven
2846509_0048.png
Nr. 46
BOU, Alm.del - 2023-24 - Bilag 76: Henvendelse af 2/4-24 fra Henning Schøn om tilsyn og om boligselskab overholder loven
2846509_0049.png
BOU, Alm.del - 2023-24 - Bilag 76: Henvendelse af 2/4-24 fra Henning Schøn om tilsyn og om boligselskab overholder loven
2846509_0050.png
BOU, Alm.del - 2023-24 - Bilag 76: Henvendelse af 2/4-24 fra Henning Schøn om tilsyn og om boligselskab overholder loven
2846509_0051.png
BOU, Alm.del - 2023-24 - Bilag 76: Henvendelse af 2/4-24 fra Henning Schøn om tilsyn og om boligselskab overholder loven
2846509_0052.png
Nr. 56
BOU, Alm.del - 2023-24 - Bilag 76: Henvendelse af 2/4-24 fra Henning Schøn om tilsyn og om boligselskab overholder loven
2846509_0053.png
BOU, Alm.del - 2023-24 - Bilag 76: Henvendelse af 2/4-24 fra Henning Schøn om tilsyn og om boligselskab overholder loven
2846509_0054.png
Revne registrering i besigtigede boliger
Bilag 4
Plus Bolig, afd. 1056, K. Christensensvej
Udført for ALABU Bolig
BOU, Alm.del - 2023-24 - Bilag 76: Henvendelse af 2/4-24 fra Henning Schøn om tilsyn og om boligselskab overholder loven
2846509_0055.png
BOU, Alm.del - 2023-24 - Bilag 76: Henvendelse af 2/4-24 fra Henning Schøn om tilsyn og om boligselskab overholder loven
2846509_0056.png
BOU, Alm.del - 2023-24 - Bilag 76: Henvendelse af 2/4-24 fra Henning Schøn om tilsyn og om boligselskab overholder loven
2846509_0057.png
Bilag 5
BygErfa 980922
Revner i vægge af etagehøje letbetonelementer
Plus Bolig, afd. 1056, K. Christensensvej
Udført for ALABU Bolig
BOU, Alm.del - 2023-24 - Bilag 76: Henvendelse af 2/4-24 fra Henning Schøn om tilsyn og om boligselskab overholder loven
2846509_0058.png
BOU, Alm.del - 2023-24 - Bilag 76: Henvendelse af 2/4-24 fra Henning Schøn om tilsyn og om boligselskab overholder loven
2846509_0059.png