Udvalget for Landdistrikter og Øer 2015-16
ULØ Alm.del Bilag 142
Offentligt
1670971_0001.png
Handlingsplan for
Faster Andelsmejeri
version 3.0
Udarbejdet af Foreningen Faster Andelsmejeri
November 2012
1933 - Version 1.0
2007 – Version 2.0, Landsbyudvikling i praksis
2012 – Version 3.0, Borgerdrevet erhvervsudvikling
ULØ, Alm.del - 2015-16 - Bilag 142: Præsentation fra udvalgets besøg 26/9-16 på Faster Andelsmejeri (LAG-projekt)
1670971_0002.png
Handlingsplan for Faster Andelsmejeri – version 3.0
Indhold
FASTER ANDELSMEJERI – VISIONERNE
IDEGRUNDLAG – FORMÅL
KONKRETE PLANER
1 - kontorlandskab
2 - atelier
3 – Mejeriets 2. sal
4 – bæredygtig økonomi
3
4
5
7
9
9
11
FASTER ANDELSMEJERI SIDEN 2007
Foreningen Faster Andelsmejeri
Udvikling i købmandsbutikken siden flytning
Arrangementer og events i Mejeriet
Mejeriet som Best Practice og anerkendelser
Udlejningssituationen
12
12
12
13
13
14
BILAG
Vedtægter for Faster Andelsmejeri
Forventet årsresultat 2012 med sammenligning 2010 og 2011
Budget for tankanlæg 2014
Budget for ejendommen 2014
Skitseforslag 1. sal
Udlejningsbrochure
Hensigtserklæring
17
18
21
24
26
27
28
29
Side 2 af 29
ULØ, Alm.del - 2015-16 - Bilag 142: Præsentation fra udvalgets besøg 26/9-16 på Faster Andelsmejeri (LAG-projekt)
1670971_0003.png
Handlingsplan for Faster Andelsmejeri – version 3.0
Faster Andelsmejeri – visionerne
I 2007 blev den første handlingsplan udarbejdet for Faster Andelsmejeri. Baggrunden var, at Mejeriet
efterhånden var blevet til en ”spøgelsesbygning” midt i byen, og det ønskede borgerne at gøre noget ved.
Samtidig ønskede borgerne, at sikre en fortsat positiv udvikling af lokalområdet.
I 2007 var idegrundlaget følgende for Faster Andelsmejeri:
Det ønskes at bevare et stykke historie fra dansk landbrug og andelsbevægelsen, og ånden fra
den gang skal igen leve i Mejeriet. Andelsmejerierne var i 1800-tallet rugekasse for udvikling af
andelstankegangen og en ny form for foreningskultur. I fremtiden skal Faster Andelsmejeri også
fungere som rugekasse for moderne former for andelstankegang og foreningsbåret erhvervsud-
vikling.
Projektet skal være et eksempel på landsbyudvikling i praksis. Et eksempel, som også kan bru-
ges af andre lokalområder, der f.eks. har en flot gammel banegård, en nedlagt skole, et gammelt
elektricitetsværk, børnehjem mv., og alle har de en historie at fortælle. De venter på at blive
brugt til noget nyt og spændende.
Samtidig er projektet omkring Mejeriet et eksempel på, hvordan lokalbefolkningen indgår i pro-
jekter. Dels for at sikre, at der sker udvikling i området, men også for det sociale liv – man vil ik-
ke bare sidde der hjemme og vente på, at der sker noget. Mange lokale borgere arbejder sam-
men om nye projekter og dermed skabes sammenhold i området – og flere ideer blomster op og
der skabes mere liv i området.
Vores vision med Mejeriet er at:
sikre et bevaringsværdigt byggeri
synliggøre eksisterende kulturarv
skabe liv og udvikling i landdistriktet
skabe arbejdspladser
Projektet sigter bredt - i form af:
Alment
o
at bevare en kulturarv
o
bevaring af aktivt landsbysamfund
Erhvervsmæssigt
o
ved etablering og fastholdelse af arbejdspladser i lokalområdet
Kulturelt
o
at fortælle en kulturhistorie
o
skabe rum for nye oplevelser
Socialt
o
projektet har stor forankring i lokalsamfundet og er med til at skabe sociale
bånd og ansvarlighed
o
at skabe et ”mødested”
Alt dette er nået – og meget mere. Tingene er måske ikke helt gået, som de var tænkt i første omgang,
men som altid i Faster-Astrup, så finder man blot på nogle nye ideer.
Side 3 af 29
ULØ, Alm.del - 2015-16 - Bilag 142: Præsentation fra udvalgets besøg 26/9-16 på Faster Andelsmejeri (LAG-projekt)
1670971_0004.png
Handlingsplan for Faster Andelsmejeri – version 3.0
Idegrundlag – formål
Version 3.0 for Faster Andelsmejeri har til formål at understøtte de initiativer, der blev igangsat i 2007, og
har udgangspunkt i det oprindelige visioner for Faster Andelsmejeri. Den gang og nu skal Faster Andels-
mejeri demonstrere
borgerdrevet landsbyudvikling.
Dette skal ske ved lokalt engagement fra borgere,
som er med til at udvikle ideer, skabe rammer og støtte forskellige initiativer og dermed sikre en fortsat
udvikling i lokalområdet.
Etablering af en ny købmandsbutik, mindre erhvervsvirksomheder og butikker, et uformelt mødested på
”Mejeritorvet”, sikring af de lokale kulturarvsværdier, øge lokalområdets sammenhængskraft - kort sagt
være værdiskabende i bred forstand.
Projektet vil bidrage yderligere til den positive selvværdsfølelse som borgerne i lokalområdet har oplevet
gennem mejeriprojektets realisering og udvikling. Det vil medvirke til at styrke den positive befolknings-
udvikling, som området oplever (+ 100 borgere på 15 år, svarende til 13%). Endvidere vil det styrke job-
mulighederne i lokalområdet. Herunder unges mulighed for et fritidsjob.
Projektet vil udvikle de mange samarbejdsplatforme, lokalområdet råder over. Udvikling i Landdistrikter
sker, hvor der er gode samarbejdsrelationer og traditioner herfor. Sammenhængskraften blandt borgere,
foreninger og erhvervsliv og på tværs af disse vil blive forøget.
Der er netop afholdt forenings/erhvervsmesse og ny Velkomstpakke til tilflyttere er gode eksempler på
tiltag, som sker på tværs af interesser.
Vi har set, at det var muligt at gennemføre mange af de tanker og ideer, der var i version 2.0. Derfor vur-
derer vi, at tiden nu er kommet til at komme videre og udnytte det potentiale, der fortsat er der, og få
mere effekt af det arbejde, der er gjort, siden projektets start.
Strategien har hele tiden været, at faserne i projektet skulle igangsættes efterhånden som der var inte-
ressenter. Der har været mange interesserede igennem tiden, men projekterne kom ikke rigtig videre, da
det blandet andet har set for uoverskueligt ud i forhold til indretning mm. Nu står vi imidlertid med nogen,
der har nogle ideer, og derfor ansøges der om midler til konkrete planer, for videre udvikling af Mejeriet,
herunder indretning af 1. og 2. sal.
Side 4 af 29
ULØ, Alm.del - 2015-16 - Bilag 142: Præsentation fra udvalgets besøg 26/9-16 på Faster Andelsmejeri (LAG-projekt)
1670971_0005.png
Handlingsplan for Faster Andelsmejeri – version 3.0
Stemningsbillede fra Mejeri Torvet med trappe til 1. sal i baggrunden.
Trappen er sponseret af Give stålspær.
Foto: Bjarne Ingemann
Konkrete planer
Aktuelt er der indledt forhandlinger om at få etableret 2 nye virksomheder i Mejeriet. 2 nye virksomheder,
som vil være af uvurderlig værdi for Faster Andelsmejeris fortsatte eksistens som foreningsejet.
Konkret er planerne følgende:
1.
2.
3.
4.
At skabe kontorlandskab til udlejning til firmaet ReCup på 1. sal
At etablere et foto atelier til udlejning til fotograf Bjarne Ingemann Andersen på 1. sal
At istandsætte 2. sal til diverse kulturelle fremstød
Skabe en bæredygtig økonomi for Faster Andelsmejeri
Der er i samarbejde med Tegnestuen Fjordlyst udarbejdet et skitseforslag til indretningen af 1. sal (se
bilag). Der er endnu ikke udarbejdet skitseforslag for 2. sal. Projektets økonomi forventes at se således
ud:
Side 5 af 29
ULØ, Alm.del - 2015-16 - Bilag 142: Præsentation fra udvalgets besøg 26/9-16 på Faster Andelsmejeri (LAG-projekt)
1670971_0006.png
Handlingsplan for Faster Andelsmejeri – version 3.0
Egen forundersøgelse omfattende
* Koncept for Mejeriet
* Markedet for nyt kontorfællesskab og udlejning af lokaler i det hele taget
* Organisationen
* Budget for anlæg og drift
* Egen udarbejdelse af handlingsplan, projektbeskrivelse og fundraising
I alt 110 timer a 100 kr.
Frivilligt arbejde
Nedbrydning, back up for håndværkere, m.m. 150 timer a 100 kr.
Anlægsarbejder
Basis overslag fra tømrermester Thorkild Skovgaard vedr. 1. sal omfattende
materialer til hulmursisolering, isolering af gulve, vægge og lofter, beklædning
af vægge (gips) og lofter (troldtekt), forsatsvinduer, gulvvarme (slanger), træ-
gulve, BD30-døre, dørlukkere, glasvæv, maling
Arbejdsløn 740 timer a 365 kr.
Indretning af tekøkken og 2 toiletter under sideloft på 1. sal
Tilkobling af gulvvarme til gasfyr
Elinstallationer (udgangspunkt i tidligere installationer)
Andre leverandørydelser
Ingeniør/arkitekt
Materialer, inventar, udstyr og maskiner
Trapper til 2. sal + flugtvejstrappe
Revision
Partner Revision, Tarm
Samlet projektopgørelse
Projektet forventes finansieret på følgende måde:
LAG *
Forsøgsprojekt MBBL
Byggeriets Ildsjæle
Eget arbejde
I alt
250.000
300.000
780.000
26.000
1.356.000
11.000
11.000
15.000
15.000
532.000
270.000
210.000
137.000
95.000
1.244.000
16.000
16.000
63.000
63.000
7.000
7.000
1.356.000
*- Tilsagn givet, men afhænger af endelig godkendelse fra ministeriet
Side 6 af 29
ULØ, Alm.del - 2015-16 - Bilag 142: Præsentation fra udvalgets besøg 26/9-16 på Faster Andelsmejeri (LAG-projekt)
1670971_0007.png
Handlingsplan for Faster Andelsmejeri – version 3.0
Tidsplanen for projektet forventes at være således:
2012
2013
Nov Dec Jan Feb Mar Apr Maj Jun Jul Aug Sep Okt Nov Dec
Foundraising
Lejeaftaler
Nedbrydning inventar mm.
Licitation
Istandsættelse af 1. og 2. sal
Indflytning af ReCup og Fotograf Bjarne Ingemann Andersen
Igangsættelse af lokal genbrugsbutik
1 - kontorlandskab
Efter Faster Andelsmejeri blev kontaktet af ReCup har der været en konstruktiv dialog om, hvordan dels
eksisterende produktionslokaler bag hovedbygningen og dels hvordan 1. sal kunne bruges som kontorlo-
kaler. Produktionslokalerne egner sig umiddelbart godt til det påtænkte produktion, da lokalerne tidligere
har været godkendt til fødevareproduktion. I Mejeriet er der indlagt 600 amp., hvilket ville koste ca. kr.
600.000 ved nyetablering. ReCup har brug for 200 amp.
1. sal, hvor der tænkes etableret kontorlokaler og foto atelier
Foto: Bjarne Ingemann
Det primære under dette punkt er istandsættelse af ca. 58 kvm på Mejeriets 1. sal som kontorlokaler for
ReCups administration og salgsteam. Christian Bliksby er allerede i gang, og er midlertidig flyttet ind hos
Kvalitetsflow i stueetagen.
Side 7 af 29
ULØ, Alm.del - 2015-16 - Bilag 142: Præsentation fra udvalgets besøg 26/9-16 på Faster Andelsmejeri (LAG-projekt)
1670971_0008.png
Handlingsplan for Faster Andelsmejeri – version 3.0
ReCup er en iværksætter virksomhed, som har 3 grundlæggende principper for dens eksistens:
1.
2.
3.
Skabe arbejdspladser i Ringkøbing-Skjern Kommune.
Lave en produktion, som har miljøet som 1. prioritet.
Skabe et eller flere produkter der kan eksporteres.
Ambitionen var at bygge en ny produktionshal fra starten, men finanskrise og placeringen i Vestjylland gør det
umådeligt svært for en nystartet virksomhed.
Der er ikke mange ledige lejemål i Vestjylland, men Faster Andelsmejeri, har nogle lokaler, der på mange måder er
attraktive. Her kan blandt andet nævnes de ekstremt præsentable bygninger, der er renoveret med stor respekt for
bygningerne. Lokalerne har en charme og sjæl, som kan give en ellers kedelig produktion og arbejdsplads, et løft i
hverdagen. Derudover har lokalerne (på grund af tidligere store mejeri maskiner) indlagt en anselig mængde strøm,
som vores kommende maskiner har brug. Det vil kunne spare os for en stor udgift.
Byens indbyggere har givet en kæmpe opbakning omkring disse lokaler og det giver os mulighed for at leje nogle
flotte lokaler til en meget attraktiv pris.
Vores produktion kommer til at bestå af 3 plast produktions maskiner. Den første kommer efter planen til at blive
sat i drift 1. maj. De 2 næste kommer efter planen til et halvt år efter. Det er gigantiske store maskiner og det bliver
umiddelbart første gang i hele verden, at en produktion med alle 3 maskiner i en fabrik bliver sat sammen.
Idémanden bag ReCup er Christian Bliksby, en iværksætter der er uddannet plastmager, så han har stor faglig
viden om alle former for plastproduktion og set mange produktioner inde fra og dermed tager erfaringer og viden
med om, hvordan en virksomhed skal drives. Det har taget 2 år at færdigudvikle idéen og med nogle investorer i
ryggen, er det endelig ved at tage form.
Målet er at skabe en produktion der køre i døgndrift, med 2 medarbejder på hvert skift. Det er 10 medarbejdere i
produktionen. Men det største arbejde ligger i salg og markedsføring især i resten af Europa. Så inden for 2 år, er
det ikke i urealistisk, at der vil være 10 administrative arbejdspladser.
Christian Bliksby
Side 8 af 29
ULØ, Alm.del - 2015-16 - Bilag 142: Præsentation fra udvalgets besøg 26/9-16 på Faster Andelsmejeri (LAG-projekt)
1670971_0009.png
Handlingsplan for Faster Andelsmejeri – version 3.0
2 - atelier
Primo oktober blev der indledt forhandlinger med portrætfotograf Bjarne Ingemann Andersen om etable-
ring af et nyt firma i Mejeriet. Bjarne ønsker at opstarte sin egen fotoforretning med hovedvægt på por-
trætfotografering. Dertil ønsker han at indrette et lokale på ca. 50 kvm. på 1. sal. Istandsættelsen drejer
sig hovedsageligt om isolering, loft og gulvbelægning samt fremførelse af varmesystem.
Fotografen er henvist fra en af vores nuværende lejere. Projektet understøtter derfor arbejdet med fortsat
at udleje lokaler og finde nye lejere. Lejerne bliver nye ambassadører for Faster Andelsmejeri.
Jeg har i mange år arbejdet som fotograf, og desværre lukkede butikken jeg var ansat i pr. 15 januar 2012 - og
hvad skulle Danmarks bedste Gruppefotograf så tage sig til….
Jeg blev kåret som Danmarks bedste Gruppefotograf i 2011, og er den eneste der har, fået lov til i danmarkshi-
storien at lave bryllupsbilleder om bord på kongeskibet Danneborg. Jeg har udviklet nogle nye måder at lave
billeder på som jeg har arbejdet på i noget tid, og er af mange blevet spurgt til om jeg ikke skulle startet for mig
selv. Eftersom mit netværk og mange fra vores lokalsamfund bakker mig op i at det er en god ide, ja så gik
jagten ind på at finde de helt rigtige lokaler dertil..
Valget er faldet på Det gamle Andelsmejeri i Astrup, da det ligger super godt og det er nogle fantastiske bygnin-
ger, som der er noget sjæl og historie i. I forhold til vores kundekreds, som hovedsagelig er familier, med små
børn og vi selv bor midt i det lokale samfund ligger det bare et fantastisk godt sted.
Det gamle mejeri kan også generere en masse opmærksomhed til vores lille atelier, da der kommer rigtig mange
mennesker der og handler hver dag, både i købmanden, men også til den lille togbutik og ingeniøren.
Vi ville have startet virksomheden op pr. november 2012, men da Mejeriet ikke havde de midler der skulle til for
at sætte lokalerne i stand som vi skulle være i, er åbningen rykket til der er midler, og mulighed for at få gjort 1
salen færdig.
Min plan var at startet det som et bierhverv i starten for så på sigt at gøre det til fuldtids beskæftigelse, som
gerne skulle vokse så der kunne blive plads til 1 eller 2 mere i firmaet om nogle år.
Opstart af Fotograf Bjarne Ingemann
3 – Mejeriets 2. sal
Mejeriets 2. sal er ca. 110 kvm. og af en særlig fremtoning. Store buede vinduer mod både øst og vest,
mægtige træspær/remme, som giver en helt speciel atmosfære. Et lokale, som man bare skal have frem
i lyset til gavn og nytte for kreative grupper/personer. Lokalet bidrager med flot udsigt mod vest til Kloste-
ret på Dejbjerg Hede og mød øst til Borris Hede.
Side 9 af 29
ULØ, Alm.del - 2015-16 - Bilag 142: Præsentation fra udvalgets besøg 26/9-16 på Faster Andelsmejeri (LAG-projekt)
1670971_0010.png
Handlingsplan for Faster Andelsmejeri – version 3.0
2. sal med synlige stålspær/remmer og med et flot view gemme det flotte vinduer
Foto: Bjarne Ingemann
Tanken er derfor, at 2. sal isoleres og istandsættes med fleksible anvendelse for øje. Det er projektets
mål at skabe ”et Rum der Rummer Rummelighed”. Lokalområdet vil blive sikret indflydelse/ejerskab og
reel anvendelse af 2. sal. Dette vil ske gennem et nyetableret ”2. salsudvalg” med repræsentation af stra-
tegiske nøgleforeninger, så som Aktiv Faster, Faster Skole, Faster Marie (støtteforening), seniorklubben
og ”kunsten inviterer indenfor”.
Faster Skole har et gennemgående ønske om at udbrede i værksætteri via deres undervisning. Skolen
kan bruge stedet til udvikling og mødested for innovation med f.eks. lokale virksomheder. Skoleelever
kan drage fordel af samarbejde med lokale virksomheder, ligesom skoleelever kan være med til at udvik-
le nye ideer til gavn for virksomhederne. Stedet kan således være et lokalt innovatorium, hvor der gives
plads til eksperimenter, ideudvikling og kreativitet.
I 2007 afholdt Aktiv Faster et fremtidsværksted for de unge i lokalområdet. Her fremførte de unge ønsket
om et klubværested – et sted som ikke krævede sportsligt tilgang, men mere i retning af musik, lyrik og
alsidig kunstretninger.
Lokalet vil også kunne bruges som mødelokale for de etablerede firmaer i Mejeriet, som efter dette pro-
jekt tæller 6 firmaer og ca. 15-20 personer.
Inden for de først 1-2 år etableres en mindre genbrugsbutik for børnetøj og legetøj. En afdeling med gode
afslappede forhold som indbyder til uformel samling.
Inden for de første 1-3 år afholdes mindst 20 forskellige event: Fortælleaftener, ”December højtlæsning
for børn, som venter på julen”, diverse husflid kurser, gourmet middag, kunstner træf, søndagskaffe, mm.
Vi ønsker endvidere, at lokalet kan være et uformelt mødested for amatørkunstnere i lokalmiljøet.
Projektideerne omkring 2. sal er fremkommet gennem lokale workshops og dialog med mulige fremtidi-
ge brugere af lokalerne.
Side 10 af 29
ULØ, Alm.del - 2015-16 - Bilag 142: Præsentation fra udvalgets besøg 26/9-16 på Faster Andelsmejeri (LAG-projekt)
1670971_0011.png
Handlingsplan for Faster Andelsmejeri – version 3.0
4 – bæredygtig økonomi
Siden 2007, hvor det oprindelige mejeriprojekt blev igangsat, har det været målet, at udlejning af produk-
tionslokalerne skulle give tilstrækkelige indtægter til, at økonomien kunne hænge sammen. Finanskri-
sen har dog resulteret i, at det har været væsentlig sværere at udleje lokaler end først antaget.
Som en væsentlig konsekvens af finanskrisen og de svære udlejningsbetingelser, er der gennem årene
oparbejdet et stort driftsunderskud. Vores bank Faster Andelskasse har som hovedkreditor tilbudt os at
omlægge deres tilgodehavende til et rente- og afdragsfrit lån over 5 år, hvilket vi har accepteret. Dette er
yderligere uddybet under noter til driftsbudget for 2014.
Netop nu står vi med 2 nye meget spændende virksomheder på tærsklen til at få domicil i Mejeriet, hvil-
ket øger behovet for ekstern finansiering. Faster Andelskasse har meddelt, at de er positive overfor pro-
jektet, men at de formentlig kun vil bidrage som en mindre medinvestor. Gennemførelsen af projektet har
stor betydning for muligheden for fortsat landsbyudvikling og borgerdrevet erhvervsudvikling.
Hos Kvalitetsflow med det store måleudstyr
Foto: Bjarne Ingemann
Side 11 af 29
ULØ, Alm.del - 2015-16 - Bilag 142: Præsentation fra udvalgets besøg 26/9-16 på Faster Andelsmejeri (LAG-projekt)
1670971_0012.png
Handlingsplan for Faster Andelsmejeri – version 3.0
Faster Andelsmejeri siden 2007
Bestyrelsen har vedtaget en Handlingsplan i 2007. Her beskrives de grundlæggende tanker for projektet
”Landsbyudvikling i Praksis”. Denne handlingsplan er stadig gældende, men med mindre justeringer.
Justeringer, der primært har medført, at udlejningsstrategien i mindre omfang henvender sig til fødevare-
sektoren, men nu mere til net baserede-/fjernarbejdspladser, internet butikker med eget showroom, men
også stadig produktionsvirksomheder.
De første 5 år har været særdeles spændende med mange positive resultater, besøg og dejlige anerken-
delser fra både nær og fjern.
MEN – desværre har vi i bestyrelsen måtte erkende, at de positive verbale kommentarer ikke står mål
med de røde tal, som kan aflæses i årsrapporten. Der er vær at bemærke, at der i denne sammenhæng
ikke har været stor udskiftning i bestyrelsen. Kun en har valgt at stoppe i foregående 5 år. Bestyrelsen har
altid troet på den grundlæggende gode ide.
Foreningen Faster Andelsmejeri
For at tilvejebringe den borgerdreven udvikling er foreningen Faster Andelsmejeri oprettet. Bestyrelsen
består af 5 personer med forskellige kompetencer i forhold til foreningsarbejde. Foreningen har ca. 100
husstande som medlemmer – svarende til 25-30% af lokalområdet. Foreningens indtægter fremkommer
ved udlejning af Mejeriets lokaler. Til denne opgave har Faster Andelsmejeri et ambassadørkorps på ca.
20 strategiske personer, alle frivillige og med tilknytning til lokalområdet, som forsøger at finde interesse-
rede lejere og/eller arrangementer.
Lokalområdet er kendt for at have mange frivillige bander som står for forskellige arbejdsopgaver. Såle-
des er der også i forbindelse med Mejeriet en bande, der varetager pedelfunktionen, herunder udvendig
og indvendig rengøring mm. og sørger for, at Mejeriet altid fremstår pænt og ryddeligt.
Udvikling i købmandsbutikken siden flytning
Den foreningsejede Astrup Købmandsbutik flyttede i december 2009 ind i Mejeriet. Forretningen blev
opgraderet fra en Kwik Spar til Spar. Det blev en større butik med et større varesortiment og øget kunde-
tilstrømning. Omsætningen er steget med 20-23% og fastholdt på dette niveau, men forventes at kunne
øges med 1-3%. Branchen har i samme periode haft et svagt fald.
Der beskæftiges �½ årsværk mere i dag end før flytning. Der er siden flytning også etableret en elevplads.
Side 12 af 29
ULØ, Alm.del - 2015-16 - Bilag 142: Præsentation fra udvalgets besøg 26/9-16 på Faster Andelsmejeri (LAG-projekt)
1670971_0013.png
Handlingsplan for Faster Andelsmejeri – version 3.0
Stemningsbillede fra Mejeri Torvet med indgangen til Astrup Købmandsbutik
Foto: Bjarne Ingemann
Arrangementer og events i Mejeriet
Gennem de seneste 3 år har Mejeriet være rammen om adskillige events og arrangementer.
Økologisk høstmarked kombineret med” Kunsten inviterer indenfor” med 500-600 gæster
Erhvervs- og Foreningsmesse med 40 stande og ca. 1.200 gæster
Koncerter, kurser (blomsterbinding, pileflet, mm), loppemarked, årlig Grundlovsfrokost med tale
og Irsk Musik
Mejeriet er således et vigtigt aktiv i forhold til at skabe sociale relationer og attraktive levevilkår.
Mejeriet som Best Practice og anerkendelser
De oprindelige tanker med Mejeriet var også, at projektet skulle fungerer som en demonstrationsmodel,
som andre kunne søge inspiration i.
I den sammenhæng har vi haft besøg af Guldborgsunds Byråd og embedsmænd, Varde Udviklingsråd,
LAG-formænd og koordinatorer fra Region Midt, Forening Norden, Diverse arbejdsgrupper med tilsvarende
projekttiltag, Skjern-Tarm Bevarringsforening, m.fl.
Desuden er projektet omtalt ved adskillige lejligheder, når emnet er ”succesfuldt landdistriktsudvikling”.
F.eks. i Landbrugsavisen, Folkemødet på Bornholm, LAG-magasinet ”Mangfoldighed i Landdistrikter” mm.
Før etableringen blev projektet vinder af Initiativprisen til Landdistriktsudvikling udstedt af Landdistrikts-
rådet og Ringkøbing-Skjern Kommune.
Side 13 af 29
ULØ, Alm.del - 2015-16 - Bilag 142: Præsentation fra udvalgets besøg 26/9-16 på Faster Andelsmejeri (LAG-projekt)
1670971_0014.png
Handlingsplan for Faster Andelsmejeri – version 3.0
Efterfølgende har Mejeriet modtaget den lokal
”Forskønnelsespris” og Bevaringsprisen 2010
fra Skjern gamle kommunes bevaringsforening.
Sidstnævnte pris gav også anledning til, at Meje-
riet var afbilledet på bevaringsforeningens jule-
mærke i 2010.
Udlejningssituationen
De disponible lokaler (ca. 957 kvm., heraf 245 kvm. kølerrum) har de seneste år været udlejet til forskel-
lige formål. Højvang frugtplantage lejede lokaler til opbevaring, sortering og pakning af firmafrugt. Frugt-
plantagen flyttede, da der ikke var tilstrækkelige personalefaciliteter, og dermed forsvandt også ideerne
om etablering af mosteri og produktion af tørret frugt. Højvang frugtplantage har fået tildelt midler fra
LAG, men disse er desværre ikke anvendt.
Thise Mejeri har i en periode lejet kølefaciliteterne, da de midlertidig manglede kapacitet.
På nuværende tidspunkt er der udlejet to forretningsdomiciler i stueetagen. Det har kostet ca. 200.000
kr. + eget arbejde at indrette lokalerne.
Faster Andelsmejeri har tidligere fået sponsoreret en ståltrappe til 1. sal. Værdi ca. 100.000 kr.
Butikken hos SMT-Modeltog
Foto: Bjarne Ingemann
Side 14 af 29
ULØ, Alm.del - 2015-16 - Bilag 142: Præsentation fra udvalgets besøg 26/9-16 på Faster Andelsmejeri (LAG-projekt)
1670971_0015.png
Handlingsplan for Faster Andelsmejeri – version 3.0
Jeg har samlet på modeltog siden jeg var 6-7 år, så interessen har været der i rigtig mange år. Vi havde forventet
kun at åbne en webshop, men nej, enten var det med fysisk butik eller ingenting, fandt vi hurtigt ud af.
Da vi så havde besluttet at vi ville åbne en butik med modeltog, måtte vi jo på jagt efter et egnet lokale, og vi
søgte mange steder.
En dag sad jeg og søgte på nettet, og fandt så endelig stedet, et gammelt mejeri. Nå, ja, vi blev enige om at tage
kontakt, for at se, hvad de kunne tilbyde…..
Vi blev rigtig godt modtaget en søndag formiddag af Poul Junge i de dengang højtrungende lokaler.
Der var ingen tvivl om, at det jo er en rigtig flot bygning, ude fra, og der er gode parkeringsmuligheder. Da vi
efterfølgende fik at vide, at vi selv havde mulighed for at være med til at bestemme hvordan lokalerne skulle
indrettes, var der ingen tvivl.
Det blev Faster Andelsmejeri, der skulle blive rammen om vores butik.
Det er en beslutning, vi bestemt ikke har fortrudt.
Vi har udvidet vores åbningstider, så vi har åbent alle hverdage fra 14-17.30 samt lørdag fra 10-14. Samtidig
har vi fået en flexjobber i praktik, så vi stadig har muligheden for at passe vores arbejde ved siden af. Det har
klart givet lidt mere omsætning. Det er vores helt klare mål at få en flexjobber ansat på et tidspunkt, når der
bliver belæg for det, rent økonomisk.
Vi har indtil nu ca. fordoblet vores omsætning pr. mdr. i forhold til sidste år., så det er jo en positiv fremgang. Vi
har fået en masse nye varer i butikken, hvilket tydeligt kan mærkes på omsætningen. Vi håber at fordoble om-
sætningen igen til næste år, og satser på en fuldtidsstilling om ca. tre år.
Vi får mere og mere salg på nettet, men også i butikken, fordi folk gerne vil ”se” tingene inden de beslutter sig
for en større handel.
Martin Sørensen
SMT-Modeltog
Side 15 af 29
ULØ, Alm.del - 2015-16 - Bilag 142: Præsentation fra udvalgets besøg 26/9-16 på Faster Andelsmejeri (LAG-projekt)
1670971_0016.png
Handlingsplan for Faster Andelsmejeri – version 3.0
Kontaktpersoner og yderligere info
Bestyrelsen for Faster Andelsmejeri
Formand
Poul Junge
Birkevænget 29, 6900 Skjern
Næstformand Hans Olesen
Videbækvej 13, 6900 Skjern
Sekretær
Anette Vestergaard Borrisvej 6, 6900 Skjern
Jørgen Madsen
Stensbovej 1, 6900 Skjern
Anne-Kristine
Birkevænget 20, 6900 Skjern
Jansen
9736 4312
9736 4304
9736 4081
9736 4175
9736 4610
[email protected]
[email protected]
[email protected]
[email protected]
[email protected]
Læs meget mere om det aktive lokalområde i Faster, Astrup og Ejstrup på
www.faster-
astrup.dk.
Pladsen foran Mejeriet
Foto: Bjarne Ingemann
Side 16 af 29
ULØ, Alm.del - 2015-16 - Bilag 142: Præsentation fra udvalgets besøg 26/9-16 på Faster Andelsmejeri (LAG-projekt)
1670971_0017.png
Handlingsplan for Faster Andelsmejeri – version 3.0
Bilag
Vedtægter for Faster Andelsmejeri
Forventet årsresultat 2012 med sammenligning 2010 og 2011
Budget for tankanlæg 2014
Budget for ejendommen 2014
Skitseforslag 1. sal
Udlejningsbrochure
Side 17 af 29
ULØ, Alm.del - 2015-16 - Bilag 142: Præsentation fra udvalgets besøg 26/9-16 på Faster Andelsmejeri (LAG-projekt)
1670971_0018.png
Handlingsplan for Faster Andelsmejeri – version 3.0
Vedtægter for Faster Andelsmejeri
J.nr. 108639/ht
Advokat
Henrik Thorstholm
Møderet for Højesteret
Aut. bobestyrer
Ret&Råd/Skjern
Østergade 5
6900 Skjern
Telefon 97 35 08 88
Telefax 97 35 38 02
E-mail:
skjern@ret -raad.dk
www.ret-
raad.dk/skjern
Bank 7780 14 10 33 -1
CVR nr. 65 21 70 15
Vedtægter
for
Foreningen
Faster Andelsmejeri
Side 18 af 29
ULØ, Alm.del - 2015-16 - Bilag 142: Præsentation fra udvalgets besøg 26/9-16 på Faster Andelsmejeri (LAG-projekt)
1670971_0019.png
Handlingsplan for Faster Andelsmejeri – version 3.0
§ 1. Navn, formål og hjemsted
Foreningens navn er: Foreningen Faster Andelsmejeri.
Foreningens hjemsted er Ringkøbing-Skjern kommune.
Foreningens adresse er Højevej 25, Astrup 6990 Skjern.
Foreningen har til formål at være en almennyttig forening til almindelig støtte af lokalområdets udvikling, fornyelse samt sikring
af områdets kulturarv.
§ 2. Medlemsforhold
Stk. 1. Optagelse
Som medlem kan optages myndige personer med interesse for foreningens formål, herunder erhvervsvirksomheder og forenin-
ger.
Indmeldelse sker ved henvendelse til bestyrelsen.
Optagelse kan nægtes, når særlige grunde taler herfor, og 2/3 af bestyrelsens medlemmer stemmer for at afvise indmeldelsen.
Nægtelsen skal dog, såfremt den optagelsessøgende ønsker det, efterprøves af førstkommende ordinære generalforsamling. Et
udtrådt eller udelukket medlem kan kun genoptages, såfremt eventuel ældre gæld til foreningen er berigtiget. Medlemmer, der
er ekskluderet af generalforsamlingen i kraft af manglende opfyldelse af de almindelige medlemsforpligtelser, kan kun genopta-
ges med samtykke fra generalforsamlingen, vedtaget med 2/3 majoritet af de fremmødte på denne.
Stk. 2. Udmeldelse og eksklusion
Udmeldelse finder sted skriftligt til formanden senest med 3 mdr. varsel til regnskabsårets udgang.
Bestyrelsen kan beslutte at ekskludere et medlem, der ikke opfylder de af medlemskabet flydende forpligtelser, eller som hand-
ler til skade for foreningen. Beslutningen kan appelleres til generalforsamlingen, der med 2/3 majoritet af de fremmødte træffer
endelig afgørelse. Medlemmer, der (trods påkrav) ikke betaler forfaldent kontingent, slettes dog uden videre fra det pågældende
regnskabsårs udløb. Eksklusion eller slettelse på grund af kontingentrestance fritager ikke for kontingentforpligtelsen for det
regnskabsår, i hvilket udelukkelsen finder sted. Medlemmer, der ikke længere opfylder betingelserne for medlemskab, slettes
ved bestyrelsens foranstaltning.
Stk. 3. Kontingentet
Kontingentet fastsættes for hvert regnskabsår, jf § 5, af generalforsamlingen.
Stk. 4. Medlemsrettigheder og -pligter
Medlemmerne er forpligtet til at overholde foreningens love og berettiget leve op til dens formålsbestemmelse.
§ 3. Bestyrelsen
Stk. 1. Opgave og valg
Foreningens daglige ledelse varetages af en bestyrelse på mindst 3 og højst 7 medlemmer valgt på generalforsamlingen for 2
år ad gangen. Genvalg kan finde sted. Hvert år afgår skiftevis lige antal bestyrelsesmedlemmer på lige årstal, og ulige antal på
ulige årstal.
Afgår et bestyrelses medlem i utide, foretages suppleringsvalg først på førstkommende generalforsamling, medmindre bestyrel-
sen derved bliver på mindre end 3 medlemmer, i hvilket tilfælde bestyrelsen er berettiget til at supplere sig selv. Bestyrelsen
konstituerer umiddelbart efter generalforsamlingen sig selv med formand, næstformand, sekretær og kasserer.
Bestyrelsen varetager foreningens tarv udadtil og indadtil.
Stk. 2. Bestyrelsesarbejdet
Bestyrelsen fastsætter selv sin forretningsorden. Bestyrelsesmøde afholdes, når formanden finder det fornødent, eller 2 besty-
relsesmedlemmer kræver det. Indkaldelse finder sted skriftligt med angivelse af dagsorden.
Over bestyrelsesmøderne føres beslutningsreferat, som underskrives af formanden eller næstformanden og referenten.
Bestyrelsen træffer beslutning ved simpel stemmeflerhed, men er kun beslutningsdygtig, når mindst halvdelen af bestyrelses-
medlemmerne er til stede. Ved stemmelighed er formandens eller den fungerende formands stemme udslagsgivende. Der kan
ikke stemmes ved fuldmagt.
§ 4. Generalforsamlingen
Stk. 1. Foreningens øverste myndighed er generalforsamlingen.
Stk. 2. Tidspunkt og indkaldelse
Ordinær generalforsamling afholdes én gang årligt inden udgangen af marts måned. Ekstraordinær generalforsamling kan
indkaldes af bestyrelsen efter behov og skal indkaldes, når mindst 1/10 af foreningens medlemmer skriftligt fremsætter krav
herom med angivelse af grund. I sidstnævnte tilfælde skal generalforsamlingen afholdes senest 6 uger efter modtagelsen af
begæringen herom.
Indkaldelse med angivelse af dagsorden annonceres med 2 ugers varsel i lokale medier.
Stk. 3. Mødeberettigede
Mødeberettigede på generalforsamlingen er alle medlemmer, der med gyldigt medlemsbevis dokumenterer deres adgangsbe-
rettigelse.
Stk. 4. Stemmeberettigede
Stemmeberettigede på generalforsamlingen er alle medlemmer, der ikke er i kontingentrestance.
Stk. 5. Gennemførelsen
Side 19 af 29
ULØ, Alm.del - 2015-16 - Bilag 142: Præsentation fra udvalgets besøg 26/9-16 på Faster Andelsmejeri (LAG-projekt)
1670971_0020.png
Handlingsplan for Faster Andelsmejeri – version 3.0
Forhandlingerne på generalforsamlingen ledes af en dirigent, der vælges af forsamlingen
.
På den ordinære generalforsamling aflægger bestyrelsen beretning om foreningens virksomhed. Endvidere fremlægges regn-
skabet for det forløbne regnskabsår til godkendelse, ligesom der vælges bestyrelse og reg. eller statsaut. revisor.
Forslag fra medlemmerne, der ønskes fremmet til afstemning uden for den udsendte dagsorden, skal indsendes skriftligt til
bestyrelsen senest 7 dage før generalforsamlingen. Der kan kun træffes beslutning om forhold, der er optaget på dagsordenen,
eller som er indkommet som anført, medmindre samtlige tilstedeværende medlemmer tiltræder.
Generalforsamlingens beslutninger træffes ved simpel stemmeflerhed, medmindre andet følger af nærværende vedtægt. Hvert
medlem har én stemme.
Afstemninger skal finde sted skriftligt, såfremt blot ét af de tilstedeværende medlemmer ønsker det. Der kan stemmes ved
fuldmagt, dog således at fuldmagt kun kan gives til et andet medlem, og således at hvert fremmødt medlem kun kan medbringe
én fuldmagt.
§ 5. Regnskab og formue
Foreningens regnskabs- og kontingentår følger kalenderåret.
Regnskabet skal før den ordinære generalforsamling være revideret af reg. eller statsaut. revisor.
Den af generalforsamlingen valgte revisor kan til enhver tid forlange indsyn i foreningens regnskabsbilag og kassebeholdningen
og skal gøre bestyrelsen opmærksom på eventuelle uregelmæssigheder i så henseende. .
§ 6. Tegning og hæftelse
Foreningen forpligtes udadtil ved underskrift af formanden og et bestyrelsesmedlem. Ved pantsætning af fast ejendom tegnes
foreningen dog af den samlede bestyrelse. Bestyrelsen kan meddele prokura.
Der påhviler ikke foreningens medlemmer nogen personlig hæftelse for de foreningen påhvilende forpligtelser.
§ 7. Vedtægtsændringer
Til ændring af nærværende vedtægt kræves vedtagelse på en generalforsamling med 2/3 af de afgivne stemmer. For ændring
af vedtægtens § 8 om opløsning kræves vedtagelse på en generalforsamling med 90% majoritet blandt samtlige medlemmer.
Opnås denne majoritet ikke, er bestyrelsen berettiget til at indkalde en ny generalforsamling, på hvilken opløsningen kan vedta-
ges med 90% majoritet blandt de fremmødte medlemmer.
§ 8. Opløsning
Til foreningens opløsning, herunder fusion med andre foreninger, kræves vedtagelse på en generalforsamling med 90% majori-
tet blandt samtlige medlemmer. Opnås denne majoritet ikke, er bestyrelsen berettiget til at indkalde en ny generalforsamling, på
hvilken opløsningen kan vedtages med 90% majoritet blandt de fremmødte medlemmer.
Ved foreningens opløsning skal foreningsformuen anvendes til almindelig støtte af lokalområdets udvikling, fornyelse samt
sikring af områdets kulturarv.
Således vedtaget i h.t. særskilt protokol på stiftelsesmødet torsdag, den 7. juni 2007 i Faster Andelsmejeri, Astrup.
Som referent: Poul Junge
som dirigent: Jørgen S. Madsen
i bestyrelsen:
Jan Vestergaard
Jørgen S. Madsen
sekretær
Jens Vestergaard
kasserer
Hans Olesen
næstformand
Poul Junge
formand
Side 20 af 29
ULØ, Alm.del - 2015-16 - Bilag 142: Præsentation fra udvalgets besøg 26/9-16 på Faster Andelsmejeri (LAG-projekt)
1670971_0021.png
Handlingsplan for Faster Andelsmejeri – version 3.0
Forventet årsresultat 2012 med sammenligning 2010 og 2011
Foreningen Faster Andelsmejeri
Resultatopgørelser 1. januar – 31. december
note
2
Lejeindtægter
Kontingentindtægter
2010
235.483
9.900
245.383
- 5.682
239.701
80.395
57.182
137.577
102.124
0
102.124
- 31.323
- 322.192
- 251.391
2.492
- 253.883
2011
274.151
9.400
283.551
- 13.504
270.047
99.684
33.408
133.092
136.955
140.107
- 3.152
0
- 291.002
- 294.154
0
- 294.154
forventet 2012
266.771
5.600
272.371
- 4.036
268.335
110.529
14.639
125.168
143.167
93.500
49.667
- 31.395
- 267.638
- 249.366
0
- 249.366
3
Tankanlæg
Dækningsbidrag
Lokaleomkostninger
Andre omkostninger
Kapacitetsomkostninger
Resultat før afskrivninger
4
5
6
Afskrivninger
Resultat af primær drift
Ekstraordinære poster
Andre finansielle omkostninger
Resultat før skat
Skat af årets resultat
Årets resultat
9
7
8
Side 21 af 29
ULØ, Alm.del - 2015-16 - Bilag 142: Præsentation fra udvalgets besøg 26/9-16 på Faster Andelsmejeri (LAG-projekt)
1670971_0022.png
Handlingsplan for Faster Andelsmejeri – version 3.0
Noter til resultatopgørelsen
Note
1-
2011
1-
2012
2010
2011
2012
Kapitalforhold: foreningen har tabt hele egenkapitalen. Ledelsen forventer, at der kan etable-
res en rentabel drift, og Faster Andelskasse har givet tilsagn om fortsat finansiering det kom-
mende år. Regnskabet er derfor aflagt under forudsætning af fortsat drift.
Foreningen har 31/10 2012 indgået aftale med Faster Andelskasse om, at den samlede bank-
gæld pr. 1/10 2012 på ca. 3,8 mill. kr. konverteres til et rente- og afdragsfrit lån i 5 år med op-
tion for foreningen til inden 1/10 2014 at akkordere med 25% af gælden, alt. inden 1/10 2015
at akkordere med 40% af gælden, alt. inden 1/10 2016 at akkordere gælden med 50%.
LEJEINDTÆGTER
Erhverv
Beboelse
Tankanlæg (intern)
Øvrige indtægter
2
159.608
60.000
30.000
6.500
235.483
170.192
60.000
30.000
13.959
274.151
192.555
55.000
0
19.216
266.771
3
TANKANLÆG
(opstart 1/10 2010)
Salg brændstof
Køb af brændstof
Varebeholdning primo
Varebeholdning ultimo
441.885
657.942
0
- 229.193
428.749
13.136
1.681.218
1.507.687
229.193
- 112.461
1.624.419
56.799
1.655.841
1.588.382
112.461
- 112.461
1.588.382
67.459
Dækningsbidrag
Direkte omkostninger
Betalingssystemer, netforbindelser
Gebyr betalingskort
Vedligeholdelse tankanlæg
Forsikringer
Kontingent forhandlerforeningen
Leje areal (intern)
6.243
306
2.894
0
0
9.375
18.808
- 5.682
9.392
5.165
4.229
19.517
2.000
30.000
70.303
- 13.504
12.760
2.826
31.522
21.887
2.500
0
71.495
- 4.036
TANKANLÆG I ALT
4
LOKALEOMKOSTNINGER
Ejendomsskat
Forsikringer
El
Vand og renovation
Vedligeholdelse
Renholdelse incl. snerydning
17.072
15.774
16.160
12.252
4.891
14.246
80.395
15.728
23.991
16.237
12.073
18.047
13.608
99.684
16.839
39.090
18.929
12.386
12.720
10.565
110.529
5
ANDRE OMKOSTNINGER
Annoncer og reklamer m.v.
Småanskaffelser
Dekoration
Forsikringer
Revision
Erklæring byggeprojekt
12.901
371
544
11.942
9.500
11.000
4.378
3.597
492
5.442
10.000
0
4.858
1.348
0
2.393
10.000
0
Side 22 af 29
ULØ, Alm.del - 2015-16 - Bilag 142: Præsentation fra udvalgets besøg 26/9-16 på Faster Andelsmejeri (LAG-projekt)
1670971_0023.png
Handlingsplan for Faster Andelsmejeri – version 3.0
Juridisk assistance
Administration og porto
Kontingenter
Generalforsamling m.m.
6.918
798
0
3.208
57.182
7.960
446
775
318
33.408
- 6.360
325
2.075
0
14.639
6
AFSKRIVNINGER
Bygninger
Driftsmateriel og inventar
0
0
0
48.890
91.217
140.107
32.500
61.000
93.500
7
ANDRE FINANSIELLE OMKOSTNINGER
Pengeinstitut, driftskonti
Pengeinstitut, lån
Kreditforening
Kautionspræmie, Vækstkaution
Garantiprovisioner
Låneomkostninger
137.073
130.213
20.781
34.125
0
0
322.192
12.910
185.197
79.982
11.813
600
500
291.002
24.160
147.744
75.009
10.500
600
9.625
267.638
8
SKAT AF ÅRETS RESULTAT
Regulering af udskudt skat
EKSTRAORDINÆRE POSTER
Istandsættelse af nyt lejemål
Afvikling af erhvervsmesse
2.492
2.492
- 31.323
0
- 31.323
0
0
0
0
0
0
0
- 41.650
10.255
- 31.395
9
08.11.2012
Side 23 af 29
ULØ, Alm.del - 2015-16 - Bilag 142: Præsentation fra udvalgets besøg 26/9-16 på Faster Andelsmejeri (LAG-projekt)
1670971_0024.png
Handlingsplan for Faster Andelsmejeri – version 3.0
Budget for tankanlæg 2014
DRIFTS- OG LIKVIDITETSBUDGET FOR FORENINGEN
FASTER ANDELSMEJERIS
GO’ON TANKANLÆG FOR 2014
Res.
1. halvår 2012
796.169
796.169
- 748.625
- 19.109
2014
Bemærkninger
Salg brændstof
Køb brændstof
Beh.regulering
Bruttofortjeneste
Betalingssy.TDC/Teller/Nets
Forsikring (årl. aug.)
El (årl. febr.)
Vedligeholdelse & service
Miljøforsikring
Kont. forhandlerforening
Leje af areal
Driftsomkostninger ialt
Resultat af primær drift
Finansiering ialt
Resultat før afskrivninger
Afdrag på lån
Likv.ændring tankanlæg
- 767.734
28.435
102.550
- 13.650
- 23.100
- 3.000
- 36.750
- 12.600
- 2.000
0
-91.100
11.450
-0
11.450
-0
11.450
.
293.000 l a 0,35 kr
- 5.979
- 11.000
- 8.600
- 15.955
- 6.000
- 1.000
- 15.000
- 63.534
- 35.099
- 59.762
- 94.861
821
- 94.040
*)
- 90.575
Budgetforudsætninger:
I 1. halvår 2012 er solgt 83.241 l brændstof.
I 1. halvår 2012 har den gns. bruttofortjeneste pr. solgt liter brændstof været 0,45 kr. iflg. Go’Ons op-
lysninger 1/8 2012 incl. Go’On event for mersalg med salg af ca. 3000 l u/fortj.
*) Vedligehold og service omfatter siden 1/3 2012 servicekontrakt med Malte Fuel Tech, der er leve-
randør af tankanlægget. Serviceaftalen omfatter udover det tekniske også alle de lovkravsmæssige
vilkår. Serviceaftalen udgør 30.000 kr. årligt.
Ved møde 1/8 2012 med 2 repræsentanter fra Go’On fastsattes salgsmålsætning som følger:
I budgetåret 1/7 2012 – 30/6 2013 skal brændstofsalget øges fra (83.241 l x 2) = 166.000 l med
107.000 l til 293.000 l og i budgetåret 1/7 2013 – 30/6 2014 skal der yderligere øges med 107.000 l til
400.000 l (som var forudsætningen for etableringen af anlægget i 2010 jvf. nedenstående). Go’On har
givet tilsagn om yderligere markedsføringshjælp for at opnå denne målsætning. Go’On har ikke mulig-
hed for i en periode at bidrage med biliigere brændstofindkøb.
Tankanlægget har været i drift siden 1/10 2010 og skulle iflg. den opr. opstartsplan basis
Go’Ons oplysninger /erfaringer ud fra trafiktælling i Astrup kunne omsætte ca. 600.000 liter
brændstof årligt – dog at 1. år (1/10 2010 – 30/9 2011) som indkøringsår nok i stedet ville ligge
på ca. 400.000 liter solgt brændstof. I 2011 er der solgt knap 200.000 liter brændstof!!!
Side 24 af 29
ULØ, Alm.del - 2015-16 - Bilag 142: Præsentation fra udvalgets besøg 26/9-16 på Faster Andelsmejeri (LAG-projekt)
1670971_0025.png
Handlingsplan for Faster Andelsmejeri – version 3.0
Havde salget i 2011 været som forventet, ville bruttofortjensten have været ca. 136.000 kr., og
iflg. førnævnte plan skulle der så i 2012 kunne sælges 600.000 liter brændstof, og dermed en
bruttofortjeneste på 204.000 kr.
1/3 2012 indgik alle Go’On forhandlere ny forhandleraftale med Go’On:
Vor indkøbspris er listepris for bemandede stationer med fradrag af 80 øre excl. moms for 92/95 oktan
og – 88 øre excl. moms for diesel (herudover betaler Go’On 4 øre til fælles markedsføring og 4 øre til
foreningsaftale)
Vi har indgået sponsoraftale med sogneforeningen/foreningsparaplyorganisationen Aktiv Faster, som
får de 4 øre (+ moms) af årets brændstofsalg fra tankanlægget.
Vi ændrede medio marts 2012 strategi på udsalgspriser til at køre med: listepris fra kl. 10-16, listepris -
50 øre fra 16-04 og listepris -75 øre fra kl. 04-10 (alt incl. moms) for derigennem at forsøge forøgelse
af salget. Herudover afholdes der årligt 2 events med exord. lave udsalgspirser i 2 timer. Vi tjener intet
på brændstofsalget ved disse events og Go’On dækker resten af underskuddet i forhold til vor ind-
købspris.
21/8 2012 ændrede vi igen iflg. aftale med Go’On til følgende:
Kl. 7-10 = 75 øre i rabat (Benzin & Diesel), kl. 10-12 = Listepris, kl. 12-15 = 50 øre, kl. 15-18 = 75 øre
og kl. 18-7 = 25 øre, så lavprisperioder bliver i de perioder, hvor der er flest kunder i købmandsbutik-
ken.
01.08.2012
Side 25 af 29
ULØ, Alm.del - 2015-16 - Bilag 142: Præsentation fra udvalgets besøg 26/9-16 på Faster Andelsmejeri (LAG-projekt)
1670971_0026.png
Handlingsplan for Faster Andelsmejeri – version 3.0
Budget for ejendommen 2014
DRIFTS- OG LIKVIDITETSBUDGET 2014
Foreningen Faster Andelsmejeri - EJENDOMMEN
Lejeindtægter
Astrup Købmandshandel husleje
Astrup Købmandshandel diskleje
SMT-Modeltog
Kvalitetsflow
Fotoatelier*
ReCup kontor*
ReCup produktionslokaler*
Ahlman Kurer
Garage
Beboelse
Lejeindtægter i alt
Medlemskontingenter (1. kvt.)
Lokaleomkostninger
Ejendomsskatter
Ejendomsforsikring årl. 1/5
Maskin- og it-forsikring (køleanlæg m.m.) årl. 1/7
El erhverv (netto)
- heraf el vedr. tankanlæg – årl. hver 1/2
Vand & renovation
Renholdelse
Vedligehold erhvervsbygninger
Vedligehold beboelse
Vedligehold og renhold udearealer
Lokaleomkostninger i alt
Øvrige omkostninger
Møder & fortæring
Annoncer & reklame
Små anskaffelser
Dekoration & repræsentation
Øvrige omkostninger i alt
Administrationsomkostninger
Kontorartikler/porto/gebyr
Revisorhonorar
Kontingenter
Låneomk. Kreditforhøjelse
Administrationsomkostninger ialt
Resultat af primær drift
Renter af lån
Renteudgifter i alt
Resultat før afskrivninger
Afdrag på krf.lån
Afdrag på banklån
Periodens likv.ændring ejendom
75.000
- 75.000
164.473
72.244
50.000
2014
97.912
12.288
38.500
30.250
28.600
32.450
88.000
5.000
3.900
48.000
384.900
384.900
8.000
Bemærkninger
16.800
28.557
12.220
23.100
- 3.000
13.650
4.150
5.250
10.500
14.700
- 125.927
500
6.000
4.000
1.000
- 11.500
500
12.500
3.000
0
- 16.000
239.473
- 122.244
42.229
* - Nye forventet lejemål i 2013.
01.11.2012
Side 26 af 29
ULØ, Alm.del - 2015-16 - Bilag 142: Præsentation fra udvalgets besøg 26/9-16 på Faster Andelsmejeri (LAG-projekt)
1670971_0027.png
Handlingsplan for Faster Andelsmejeri – version 3.0
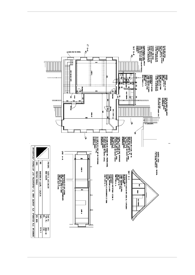
Skitseforslag 1. sal
Side 27 af 29
ULØ, Alm.del - 2015-16 - Bilag 142: Præsentation fra udvalgets besøg 26/9-16 på Faster Andelsmejeri (LAG-projekt)
1670971_0028.png
Handlingsplan for Faster Andelsmejeri – version 3.0
Udlejningsbrochure
Side 28 af 29
ULØ, Alm.del - 2015-16 - Bilag 142: Præsentation fra udvalgets besøg 26/9-16 på Faster Andelsmejeri (LAG-projekt)
1670971_0029.png
Handlingsplan for Faster Andelsmejeri – version 3.0
Hensigtserklæring
Side 29 af 29